欢迎来到济南装一网!| 登录免费注册 触屏版
您的位置:装一网>济南站>济南生活家>促销活动>小户型看过来,57㎡也能有2室2厅1阳台

0531-86095002 生活家家居

地址:山东省 济南市 历下区 泉城路322号惠尔商厦5层

在线报价在线预约

  • 一居室
  • 二居室
  • 三居室
  • 四居室
  • 复式
  • 别墅
  • 其他

联系我们

济南生活家装饰工程有限公司

地  址:山东省 济南市 历下区 泉城路322号惠尔商厦5层

电  话:0531-86095002

联系人:生活家家居

促销活动

小户型看过来,57㎡也能有2室2厅1阳台

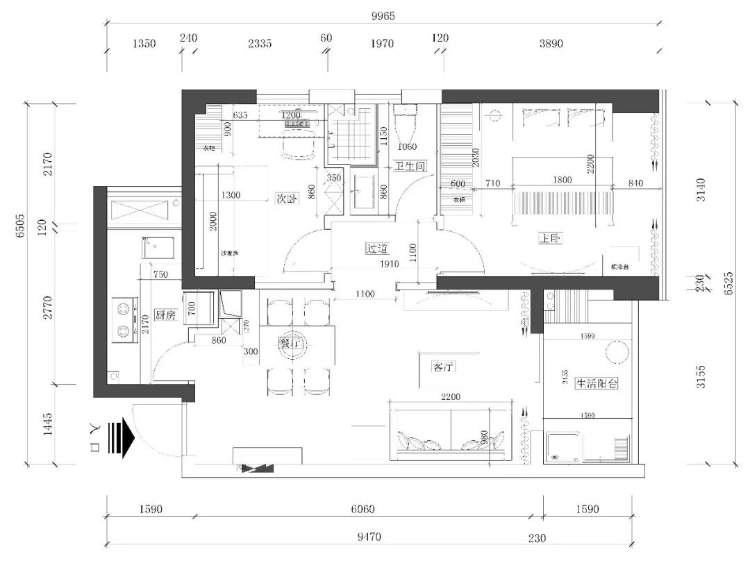
内容提示:这是一套小户型。57平米的套内面积竟安置下了两室两厅一卫一阳台。原来空间这种东西,也像牙膏似的,挤一挤总会有的。所以如果你住着小户型,不必沮丧空间不足,够聪明,就会有奇迹。


图片


从看到这套案例到现在的数个小时里,我脑中就一直被那首《蓝蓝的夜蓝蓝的梦》所萦绕。


让人瞬间洗脑的旋律,被叫做耳虫。而一个房间的画面,明明应该只对视觉有刺激,却将一段旋律也连动了起来,在我看来,是设计师将一种感受表达到了极致的效果。


至于你要管它叫地中海风格抑或别的什么风,并不重要,关键在于,它表达出了你要的生活。


图片



案例档案


案例风格:现代

装修面积:57平方米(套内)

户型:2室2厅1卫1阳台


图片


客厅

家里想刷彩色墙,通常是一件需要谨慎的事,对于选颜色这个环节,是需要考虑周全的。比如户型大小、采光如何、搭配的地板颜色和沙发颜色,还有软装的调性,都得先行有数。这种大局观,不是朝夕就能练就出来的。


图片

尤其对于小户型来说,大多数人为了避免杂乱感,都会倾向于让家里的颜色越素、越少越好。但今天的案例并未循此常规,却更为赏心悦目。


蔚蓝墙面、灰色沙发、深棕森地板、金属画框,这些元素赶紧学起来。


图片


主卧

主卧相对朴素,但搭配依然花了心思。比如浅灰的壁纸,藤叶的床单,还有复古的架子床、复古台灯和窗帘。


图片

次卧

次卧胜出的是功能性。对于一个57平米的小户型而言,能多出一个卧室已属不易,所以将它极尽所能就变得更加重要。这样的次卧,通常是给临时来客使用,因此床不用太大,甚至沙发床即可。其他的区域,设计师则将它按照书房打造了出来。有靠窗的书桌、大大的书柜,实用性飙升。


图片


餐厅

个人觉得蔚蓝墙面色基本确定了家具的颜色尽量以深木色为佳。餐桌上方的灯不能少,而且要用暖色光,它照在食物上能让人更有食欲。


图片


厨房

看过不少风格鲜明的装修,却都将风格拒于了厨房门外。似乎这是一个难以秉承整体特色的空间。想必是能买到的橱柜的颜色相对比较少,所以多数人干脆凑合买一组了事。于是那些将风格坚持到了厨房的家,轻易便脱颖而出。比如今天的案例。


图片


阳台

某些方面来说,阳台也算是一个挺私密的地方。比如你那些发呆、冥想、放空的时刻,一定多在这里发生。所以如此看来,好好为自己的这些小时刻铺一个窝,其实颇有必要。哪怕是像这样一个舒适的角落,也妙不可言。


图片

///////

手机版

小程序

公众号