欢迎来到济南装一网!| 登录免费注册 触屏版
您的位置:装一网>济南站>济南生活家>促销活动>实景案例丨给设计师一块石材,什么都能给你造出来

0531-86095002 生活家家居

地址:山东省 济南市 历下区 泉城路322号惠尔商厦5层

在线报价在线预约

  • 一居室
  • 二居室
  • 三居室
  • 四居室
  • 复式
  • 别墅
  • 其他

联系我们

济南生活家装饰工程有限公司

地  址:山东省 济南市 历下区 泉城路322号惠尔商厦5层

电  话:0531-86095002

联系人:生活家家居

促销活动

实景案例丨给设计师一块石材,什么都能给你造出来

内容提示:在设计上,突出业主个性,对家的设计有独特的思考,崇尚自然。装修中,设计师开阔了生活空间,通透实用。也采用了多种艺术墙漆工艺,个性十足。


图片




本期案例,是贵阳设计师周金滔老师的家,一套工业风格浓烈的房子。


图片


房屋布局

—house layout

 

【坐标】:贵阳

【面积】:120m²

【户型】:3室2厅2卫

【风格】:工业风

【设计】:生活家装饰

【装修预算】:硬装18W



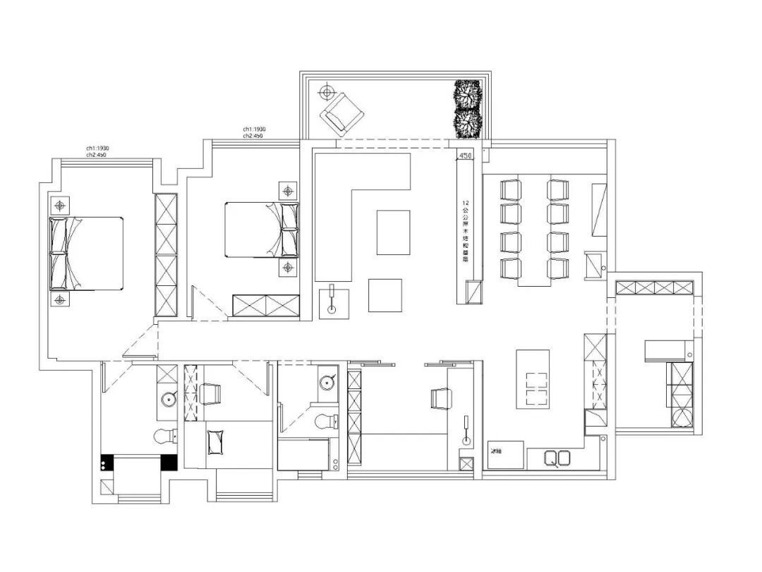
户型改造

— House modification


图片

△ 原户型图


这套房子的户型方正,空间通透,采光良好。设计师的设计初心围绕着“空间开阔,互动性强”,所以进行了以下改造:


1、将公共空间开辟成宽敞的餐厅空间,厨房的生活阳台打通,变成大开放式厨房;

2、原餐厅空间与客厅连通,变成开放式书房区域;

3、用单面墙结构改造卧室,衣柜变大,留白处更开阔;



图片

△ 改造后户型图


图片



图片


图片


入户后经过玄关,左手边映入眼帘的便是这个开阔的厨房。业主摒弃了传统厨房的封闭空间,希望现在及未来的生活,以家人互动为主。采用了欧美风岛台结构,中岛烟机也遵循了欧美文化习惯。


图片


内嵌式的柜体,增大了橱柜使用率,可以放置微波炉、烤箱等日常用品。释放了厨房的空间,不仅收纳了当前家里的物品,也给未来可能增加的物品留出空间。




图片


图片


从玄关入户的右手边,便是餐厅。这块区域本来是赠送的空间,在设计师看来却是得天独厚的餐厅区。抬头便可看见厨房,互通性极强的同时又拥有独立的空间。


图片


餐桌边的台面不仅起到装饰作用,由于开发商的设计问题,业主家没有挂置空调外机的地方,他便很好地利用了这个空间,原始粗矿的木饰面底下,隐藏了“无处安放”的空调外机。


图片


客厅和厨房空间墙面均使用了“福建芝麻灰”。




图片


图片图片


设计师将这套房子的公共区域互通性做到了极致。电视墙采用了原始火山岩材质的背景,删繁就简,将视觉压力降到最低,并与客厅空间的基调呼应。


客厅地板采用了纯天然石材,完美展现工业风的粗矿自然。


图片


业主给自己设计了一个超大书房空间。由于职业是设计师,需要诸多灵感而不是闭门造车,这样的书房开放式设计,与客厅相通,不仅可以从生活中获取灵感,和家人的互动性也增强。


图片


客厅与书房墙面做的是基底艺术漆,先做出凹凸质感的基底,再用面漆进行均匀的涂抹,与一般乳胶漆不同的是,基底漆不是以滚涂或喷的形式进行上墙,而是用海绵一块块的揉抹,工程量较大但是风格独特。




图片


图片


将卧室门移位,在侧面做了80公分单面墙结构,加装衣柜,视觉宽度大了很多,增加了储物空间,收纳力MAX。



图片


原本计划放衣柜的卧室进门处留空,放置了一个可以挂日常衣物的衣架,不仅方便,而且干净利落,视觉效果清爽。




图片


整套房的改动区域主要集中在公共空间的互通性。

 

●餐厅扩大,与厨房连通。


将赠送的空间改造成宽阔的餐厅区域,与开放式厨房互通性极强。

 

●书房与客厅连通,增强家的互动。


即使在工作,也能陪伴家人。将工作与家庭生活完美融合。


图片

手机版

小程序

公众号