欢迎来到济南装一网!| 登录免费注册 触屏版
您的位置:装一网>济南站>济南生活家>促销活动>实景案例丨160㎡美式轻奢,让整个家尽情释放个性

0531-86095002 生活家家居

地址:山东省 济南市 历下区 泉城路322号惠尔商厦5层

在线报价在线预约

  • 一居室
  • 二居室
  • 三居室
  • 四居室
  • 复式
  • 别墅
  • 其他

联系我们

济南生活家装饰工程有限公司

地  址:山东省 济南市 历下区 泉城路322号惠尔商厦5层

电  话:0531-86095002

联系人:生活家家居

促销活动

实景案例丨160㎡美式轻奢,让整个家尽情释放个性

内容提示:这个家的主人希望家能颜值高,功能全,拥有大大的衣帽间、厨房,充满艺术感的客餐厅……让人能在快速的工作和学习中慢下来,享受生活,寄托关于生活的爱与梦想。


图片

“家由爱与梦想构成。”


这160㎡的家宽阔方正,布局合理,但像这样的优质户型,在遇上具体的居住者时,往往也无法完全满足个性化的需求,距离成为一个“家”总是还差一步。


这个家的主人希望家能颜值高,功能全,拥有大大的衣帽间、厨房,充满艺术感的客餐厅……让人能在快速的工作和学习中慢下来,享受生活,寄托关于生活的爱与梦想。


我们想通过装修,让房屋跨过那一步,成为真正舒适温馨的家。


图片


面积:160m²

户型:3室2厅2卫

风格:美式轻奢

设计:生活家家居

图片

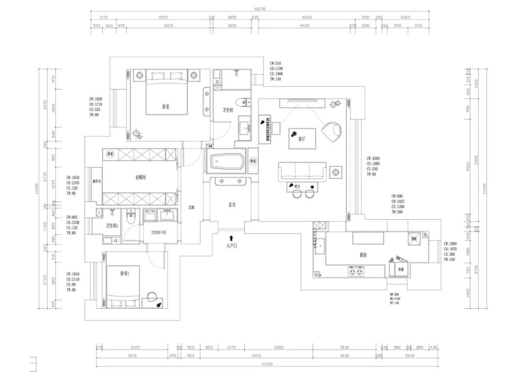
△改造前 原始结构图


● 改造难点


· 餐厅位置较为单调;

· 厨房较小;

· 主卧无专门的衣帽间


图片

△改造后 平面布置图


● 设计亮点


· 重新规划布局,将一个次卧改为衣帽间;

· 打通厨房和阳台,扩大厨房空间;

· 设置餐厅吧台,增加客餐厅情调;

· 两个卫浴空间均实现干湿分离。


设计师结合业主需求,确定全新的空间区域布局,在造型、材质、色彩搭配上精挑细选,打造出个性化的居所。


图片


图片图片


门厅处放置造型复古的柜子,用于简单的收纳,线条、纹路与弧形的空间,华丽的灯盏相映成趣,摆上业主喜欢的复古钟、风景油画,以及生机勃勃的植物,这个家的基调尽显:


复古,华丽,同时又简约而温馨。


图片


图片图片


客厅墙面选用大面积的白色,电视墙的线条撇去繁复,顶面采用石膏板平顶,加上简约的线条,优雅洗练,造型独特,与华丽的水晶灯具呼应。家具采用暖色调,加上业主的钢琴,整体营造出简约而不失质感的法式情调。


图片图片


客厅茶几是具有设计感的四分隔玻璃桌面,材质显通透,让客厅空间有了更加年轻态的设计,避免沉闷。


一把舒适的按摩椅,加上一盏壁灯,就可以成为一个温馨的阅读角。


图片图片


布艺沙发的背后是一处独特的壁炉设计。大理石砌成的壁炉为家带来一丝暖意,也让齐聚起居空间更有了仪式感。


壁炉上方是一面造型独特的镜子,既起到了装饰的作用,也方便主人在这里整理仪表。


旁边设计了一组到顶的展示柜+抽屉,可以放置一些收藏小物,用个性喜好装点客厅。


图片


图片


原厨房空间较小,设计师拆除阳台和厨房之间的隔断,将两个空间打通,扩大了厨房面积,更符合业主的生活所需。


图片


橱柜选用瓷白色,搭配对色的墙砖、地砖,间插出具有层次的色彩美,空间不再显得单调。


图片


图片


卧室摒弃了以前的陈旧做法,使用环保度极好的石膏线制作背景墙,顶面做了矩形吊顶搭配定制石膏线条,造型简单细腻,不显繁琐,干净利落,增强了空间层次感。


图片图片


衣帽间风格依旧是轻奢,没有复杂的吊顶、采用简约平顶,跟卧室一样采用深色地板,墙面留白与整体呼应。


图片


关于生活,除了柴米油盐,我们也会有一些浪漫的畅想,想要欧式的风情,艺术的情调,要实现这一切,无需过于繁复华丽的装饰。


相反,像这套案例这样,采用石膏线的简单装饰,两相呼应的深色木地板、浅色墙面……再加上精致的灯饰、家具,乃至一幅油画,一捧瓶插花的装饰,便打造出了一所浪漫之家。


图片


图片

手机版

小程序

公众号