欢迎来到济南装一网!| 登录免费注册 触屏版
您的位置:装一网>济南站>济南生活家>促销活动>100㎡现代简约,大巧不工,舒适至上的家

0531-86095002 生活家家居

地址:山东省 济南市 历下区 泉城路322号惠尔商厦5层

在线报价在线预约

  • 一居室
  • 二居室
  • 三居室
  • 四居室
  • 复式
  • 别墅
  • 其他

联系我们

济南生活家装饰工程有限公司

地  址:山东省 济南市 历下区 泉城路322号惠尔商厦5层

电  话:0531-86095002

联系人:生活家家居

促销活动

100㎡现代简约,大巧不工,舒适至上的家

内容提示:购房,装修,入住,不管是刚需房还是改善房,大都投入了所有关于好生活的设想,而最基础也最重要的,大约就是要住得舒服。


图片

购房,装修,入住,不管是刚需房还是改善房,大都投入了所有关于好生活的设想,而最基础也最重要的,大约就是要住得舒服。


今天我们要分享的这个家,没有大动干戈的“爆改”,一切以居住者的需要为核心展开,简约风格,承载起丰富的美好生活。


图片


  1     基本信息


- 楼盘:福州·中茵上城美域

- 面积:100㎡

- 户型:3室2厅2卫

- 风格:现代简约


  2     业主需求


业主喜欢简约的设计,三个卧室足以满足生活所需,其中一间需要打造为长辈房,供家中老人居住。另外,业主提出希望鞋柜够大,有充足的收纳空间。


  3     设计师说


这套房子的整体采光很好,户型较为方正,每个空间都有单独的窗户,南北通透。


我们尽量保持大部分格局不变,让自然光线可以撒满整个屋子,同时通过设计,让空间布局尽量完美,面积利用率更高。


  4     改造前VS改造后


图片

△改造前·原始结构图 图源©生活家家居


图片

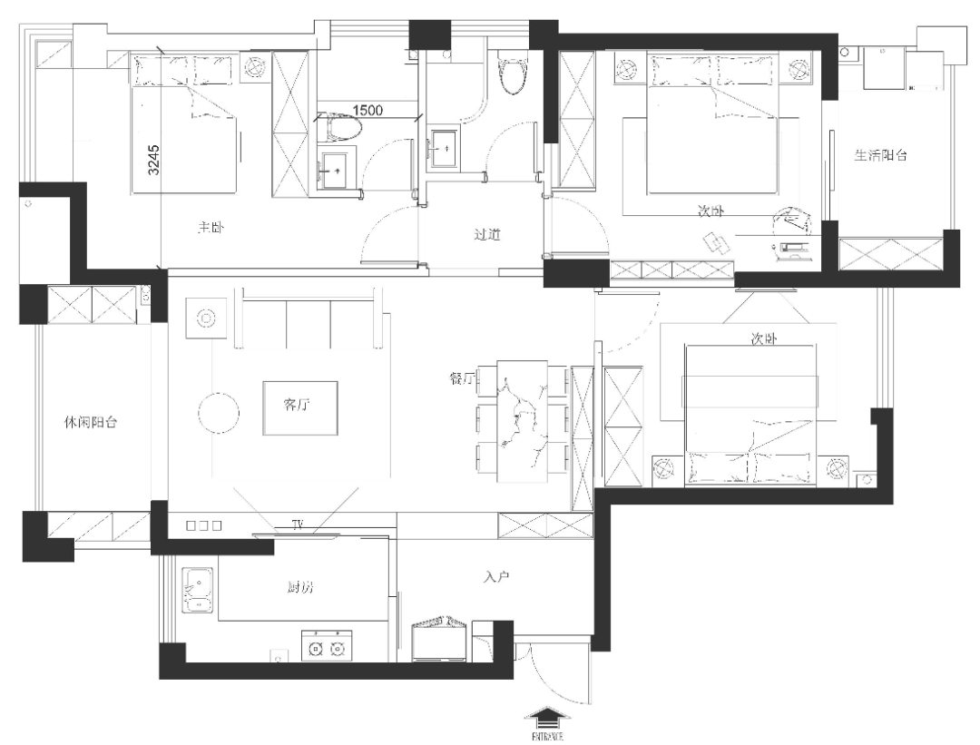
△改造后·平面布置图 图源©生活家家居


图片


  1     入户:极致收纳


原入户空间比较常规,相对窄小,而鞋柜设置于此,柜体过大会使得入户更窄小,过小则很难充分满足业主的收纳需求。


图片

△改造前的入户空间。图源©生活家家居


设计师围绕业主“想要更大的鞋柜”这一突出需求,在规划布局时,扩大了入户空间,做足了收纳空间。


图片

改造后的入户空间图源©生活家家居


入户后正对的空间设置柜体,顶天的柜体有着充足的收纳空间,并且有效分隔入户与餐厅。


图片

效果图,红色框线标注的是鞋柜,能充分收纳业主一家的鞋子和其他物件。图源©生活家家居


同时为避免入户显得逼仄,设计师以原结构为准,留出入户左侧放双开门冰箱的空间,为厨房腾挪出不少空间,也有效连接了入户到厨房、客餐厅。厨房门还选用了玻璃材质,这样一来,进入家门后的感受更加通透。


  2     客厅、餐厅、阳台:方正至上


原户型客厅空间有着很好的比例,在空间布局上不必大改。


图片

改造前的客厅、餐厅、阳台。图源©生活家家居


设计师让客厅、餐厅和阳台空间全部贯通,呈现出既方正又宽阔的空间感,也实现了自然光洒满整屋的想法。


图片

改造后的客厅、餐厅、阳台。图源©生活家家居


整个空间以白色作为基础色调,用黑色等深色系的元素增加时尚感,整体和谐一致,又有细节上的空间层次分隔。


图片图片

△客厅、餐厅、阳台整体效果图图源©生活家家居


客厅沙发墙用软包做装饰,简约不失时尚。顶上石膏板用筒灯点缀,空间感划分清晰。皮质沙发与金属线条呼应,营造出空间的轻奢感。


图片

△客厅沙发墙效果图。图源©生活家家居


客厅采用投影,电视墙做了柜子,线条简洁,也能够满足业主的收纳需求。


图片

客厅电视墙效果图。图源©生活家家居


休闲阳台和客厅打通,落地窗户将阳光装满整屋,阳台两侧设置柜体,可以作为家政柜,又一次满足了客户的收纳需要。


图片

△从客厅看向阳台,效果图。图源©生活家家居


餐厅的棕木色餐桌椅搭配浅色餐边柜,与整个空间的调性呼应,顶部设计和客厅一致,保持空间的贯通,灯光以暖黄色为基调,让用餐氛围更加温馨。


图片

餐厅效果图。图源©生活家家居


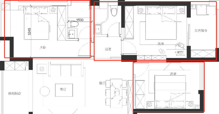
  3    卧室:大气简约


卧室是休憩身心的所在,设计师结合业主的具体需求,秉着大气简约并且舒适的原则设计了这三间卧室。改动的地方不多,主要是:


主卧打造步入式衣帽间、二分离的卫浴空间;


次卧改变门洞位置,增加收纳柜体、书桌等;


次卧三采用榻榻米书房设计。


图片

改造前的卧室区域图源©生活家家居

图片

改造后的卧室区域。图源©生活家家居


主卧依照业主要求,按套房标准设计,在保证原有的现代风格的基础上,需要提升整体的大气与华丽感,所以在设计时,空间以大为主。


卫生间干湿分离,进入卫生间,设有步入式衣帽间,空间利用率与实用性得到大大地提升。


卧室内还有一个采光很好的办公区,满足业主日常办公需要。


图片

主卧效果图。图源©生活家家居


次卧延续整体空间的色调,用床头背景去点缀整体房间的效果,衣柜 书桌整体协调,实用性同时又不影响美观。


图片

△次卧效果图图源©生活家家居

图片

次卧效果图。图源©生活家家居


图片


福州中茵上城美域这套3室2厅100㎡的房子,不需要做太多的改动,户型本身就很优秀,设计时主要考虑满足业主个性化的需要,发挥原户型的优势。


总结一些来自本套案例的改造经验:


· 入户要避免狭窄逼仄,尽量通透,设置大鞋柜既可以做隔断,又能够满足收纳需要。


· 对于本就方正,采光优越的客餐厅、阳台,可以全面打通,从细节上分隔空间即可,让采光通风都能够最大化。


· 卧室设计步入式衣帽间,可以让空间看起来更有整体感,利用率高,也很实用。


图片


图片

手机版

小程序

公众号