欢迎来到济南装一网!| 登录免费注册 触屏版
您的位置:装一网>济南站>济南生活家>促销活动>106㎡简约,怎么在十几平的卧室里做出一个衣帽间

0531-86095002 生活家家居

地址:山东省 济南市 历下区 泉城路322号惠尔商厦5层

在线报价在线预约

  • 一居室
  • 二居室
  • 三居室
  • 四居室
  • 复式
  • 别墅
  • 其他

联系我们

济南生活家装饰工程有限公司

地  址:山东省 济南市 历下区 泉城路322号惠尔商厦5层

电  话:0531-86095002

联系人:生活家家居

促销活动

106㎡简约,怎么在十几平的卧室里做出一个衣帽间

内容提示:无论f房子最终如何改造,要事先想清楚的事情便是自己的需求。比如本案的需求,便着重在储物空间、空间利用率和公共空间功能划分上。也只有明确了这些,设计师才能更加有的放矢地为你打造新家。


图片

对一个房子进行改造,往往意味着需要解决的问题不止一种。这套户型方正通透,没什么硬伤,但具体到业主需求时,依然有很多方案可以选择。


而无论最终如何改造,要事先想清楚的事情便是自己的需求。比如本案的需求,便着重在储物空间、空间利用率和公共空间功能划分上。也只有明确了这些,设计师才能更加有的放矢地为你打造新家。




图片


  1     基本信息


- 楼盘:福州·鲁能公馆

- 面积106㎡

- 户型:3室2厅

- 风格:现代简约


  2     业主需求


这是一个有老人和小孩的家庭。业主希望有个大鞋柜,家里总的储物空间也要足够多,客厅设计要简单,要有老人房和儿童房,主卧里还需要有独立的电视位置。


  3     设计师说


这套房子为全窗设计,户型方正,南北通透,采光很好。整体格局不需要有什么大的改造,设计中需要着重考虑的是如何保证较高的空间利用率,同时保障业主对储物空间及房间功能的要求。


  4     改造前VS改造后


图片

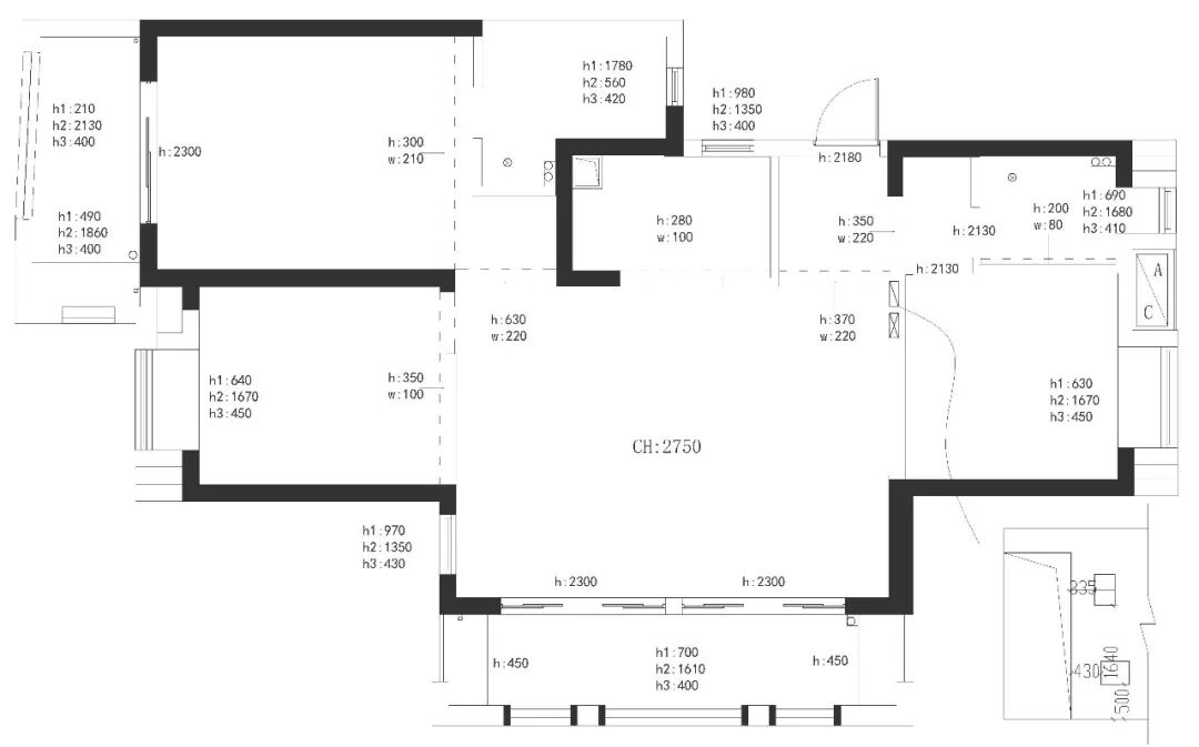
△原始户型图 图源©生活家家居


图片

△平面图 图源©生活家家居



图片


  1     客厅/让活动空间再大一点


这套户型中没有独立的餐厅区域,所以基本决定了这个方正的客厅里,需要规划出餐厅的一席之地。用家具的摆放来实现功能区域的划分,是装修中常用的方法。这里客餐厅的区隔,则是以沙发为界,前面是会客区,后面是用餐区。


图片

△客厅改造前。图源©生活家家居


原阳台很长,而且设置有两个推拉门,设计师的改造方案是将“1”处的推拉门拿掉,然后在2处增设隔断。这样做的好处有两个,一是扩大了会客区的面积,二是将生活阳台独立了出来,在最小改动的情况下,清晰地划分开了整个客厅的会客、用餐、晾晒三个功能区。 


图片

△客厅改造后图源©生活家家居


图片

△客厅效果图。图源©生活家家居


图片

△餐厅效果图。图源©生活家家居


  2     老人房/提高空间利用率


老人房里原来有一个内置的空调外机位(“1”处),旁边则以飘窗(“2”处)的设计保证了空间的方正,但其实对于老人房而言,飘窗并不实用,空调外机内置也降低了房间的有效面积。


图片

△老人房改造前。图源©生活家家居


在保证安全的前提下,设计师将“1”处的机位拆除,“2”处的飘窗也不再需要,这样一来,老人房便宽敞了很多,用一整面墙打造通天衣柜也不会显得拥挤。   


图片

△老人房改造后 图源©生活家家居


图片

△老人房效果图 图源©生活家家居


  3     主卧/加个衣帽间没那么难


主卧的原始格局没有什么硬伤,主要是根据业主的需求来看是否有需要调整的地方。为了满足业主对储物空间的要求,设计师决定打造一个衣帽间。


图片

△主卧改造前图源©生活家家居


先是将卫生间“1”和“2”处的墙体敲掉,然后在“3”处新建墙体,这样,通过适当压缩卫生间的面积,设计师在“4”处打造了一个步入式衣帽间。主卧外阳台的纳入,则让主卧更宽敞,哪怕增设了衣帽间,也不会觉得逼仄。


图片

△主卧改造后图源©生活家家居


图片

△主卧效果图图源©生活家家居



图片


鲁能公馆这套106m²三室户型方正,采光和通风都不错,只是有一个卧室因为有内置的空调外机位,所以利用率有些低,在保证安全的前提下,可对此进行改造,提高房间使用面积。其他的设计细节,则主要是根据业主的需求,进行相应改造。


本案的业主家庭因为有老人和小孩,对储物空间和各房间的功能都提出了要求,设计师给出的方案也许可以为你提供一些参考和灵感。


1、大鞋柜才能满足一家多口的需要。对多口而言,一面设计合理的大鞋柜应该是标配,而本案的入户不算十分宽敞,为了保证进门后的舒适感,设计师将客卫的盥洗区开放出来,这让玄关处的通透感强了很多。


2、生活阳台和休闲阳台全都要。这套户型的阳台比较长,全部用作晾晒的生活阳台略显浪费,设计师的办法是将其一分为二,一半区隔为生活阳台,一半则做成开放式,融入客厅的会客区,这让客厅的功能变得清晰又多样。


3、衣帽间不能少。对于越来越多的家庭来说,衣帽间成为必不可少的配置。本案主卧的原始户型中没有这个空间的预留,但实际上在打通阳台后,主卧是有足够空间打造衣帽间的,于是在做了一些简单的墙体改造后,设计师完美在主卧内设置了一个步入式衣帽间。


图片


图片

手机版

小程序

公众号