欢迎来到济南装一网!| 登录免费注册 触屏版
您的位置:装一网>济南站>济南生活家>促销活动>用一个飘窗换个大衣柜

0531-86095002 生活家家居

地址:山东省 济南市 历下区 泉城路322号惠尔商厦5层

在线报价在线预约

  • 一居室
  • 二居室
  • 三居室
  • 四居室
  • 复式
  • 别墅
  • 其他

联系我们

济南生活家装饰工程有限公司

地  址:山东省 济南市 历下区 泉城路322号惠尔商厦5层

电  话:0531-86095002

联系人:生活家家居

促销活动

用一个飘窗换个大衣柜

内容提示:家里住的人,是决定装修的重要因素,他们的生活方式和习惯,是房子最终成为这个样子的原因。



图片


这套房子里的主人,是一对中老年夫妇,两人喜欢有格调的家,也希望家里不实用之处能得到改造,设计师由此对细节的处理,也许能让你有所借鉴。



图片


  1     基本信息


- 楼盘:昆明·春风十里御风苑

- 面积:90

- 户型:3室2厅

- 风格:新中式


  2     业主需求


业主为一对50岁夫妇,比较喜欢新中式风格,需要一间茶室,孩子不经常回来,但是也需要保留卧房。他们希望自己的新家简单有格调,同时也很注重品质和材料的环保性。


  3     设计师说


这套户型每个空间都很方正,采光和通风都很好,没有硬伤。三室的户型对于两口子来说,刚好还可以打造一间茶室。


两个卧室都有飘窗,对于老两口来说,实用性不是很强。另外次卫的门正对餐厅,会有些许不雅。


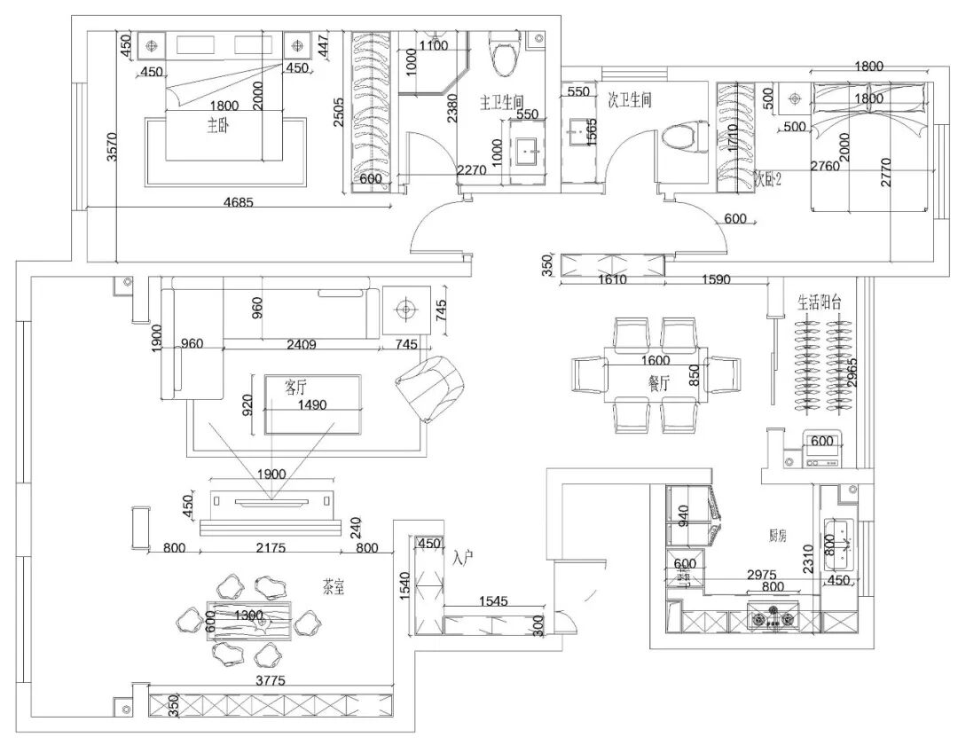
  4     改造前VS改造后


图片

△原始户型图 图源©生活家家居


图片

△平面图 图源©生活家家居



图片


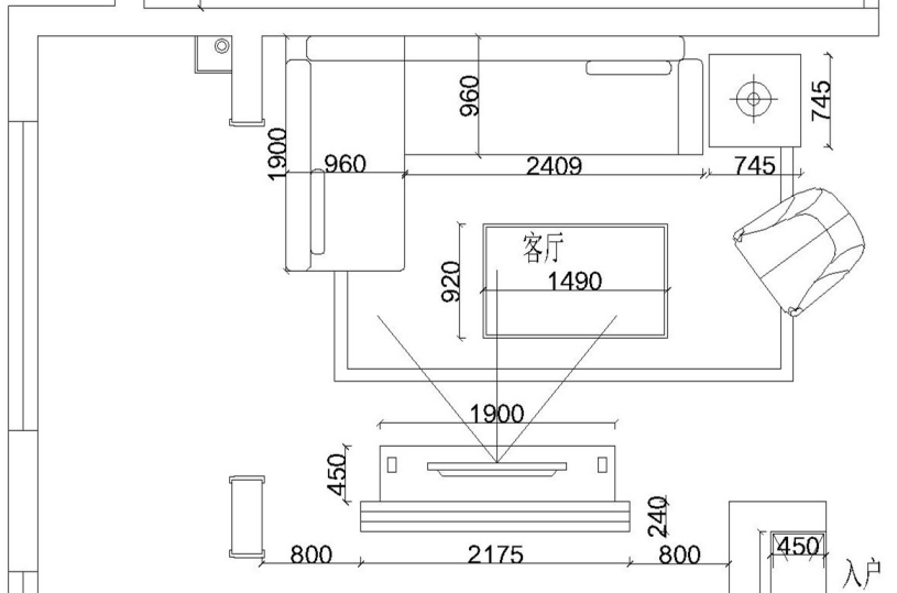
  1     客厅/让开放更开放


客厅与阳台间没有封闭,设计师保留了这样的开放式布局,不止于此,设计师还打掉了客厅与隔壁书房之间的墙体(红框处),仅用一段格栅隔断开。


图片

△客厅改造前。图源©生活家家居


图片

△客厅改造后图源©生活家家居


改造后的客厅,几乎完全连通阳台,与书房间也几乎是打通的,整体格局比原来更开阔通透。


图片

△客厅效果图。图源©生活家家居


图片

△客厅效果图。图源©生活家家居


  2     茶室/把别处的尴尬空间利用进来


因为不需要三个卧室,所以其中一间房间便按业主需求改造成为了茶室。为了让在家人能尽可能随时交流,设计师将茶室和客厅之间的墙(“1”处)换成了格栅。


图片

△茶室改造前。图源©生活家家居


此户型有一个连通阳台与茶室的超长阳台,设计师把茶室与阳台间的隔断打通(“2”处),让阳台、客厅、茶室几乎连为了整体。   


图片

△茶室改造后 图源©生活家家居


三合一后的公共空间相当开阔,配合简约的新中式家具,更显大气。


图片

△茶室效果图 图源©生活家家居


图片

△茶室效果图 图源©生活家家居



  3     主卧/不实用的就拿掉


飘窗对于年轻人来说,是一个可以倦在里面发呆休息的居心地,浪漫又舒适。但对于中老年人来说,飘窗最可能的归属,却是堆杂物的地方。所以本案卧室里的飘窗(红框处),都被设计师拿掉了,这变相扩大了卧室的使用面积。


图片

△主卧改造前 图源©生活家家居


没有了飘窗的设置,主卧便有了足够的空间安放整面定制柜,储物功能也大大提升。


图片

△主卧改造后 图源©生活家家居


图片

△主卧效果图 图源©生活家家居


  4     次卧/不要飘窗要衣柜


和主卧一样,次卧的飘窗也被打掉了(“1”处),扩大实用面积后的次卧,同样也安下了一面定制衣柜。


图片

△次卧改造前 图源©生活家家居


原先客卫的门(“3”处)正对着餐厅,为解决这个问题,设计师在次卧门外沿着墙延伸出一面展示柜(“2”处),柜体面朝餐厅,可做餐边柜,也可摆放业主的中式物件。既挡住了卫生间门,又增加了餐厅区域的收纳空间。


图片

△次卧改造后 图源©生活家家居


图片

△次卧外柜体效果图 图源©生活家家居


图片

△次卧效果图 图源©生活家家居



图片


这套三室户型总体来说方正好用,没有硬伤,设计师要做的则是充分了解业主需求,然后对现有空间进行功能上的合理分配。


本案的常住人口是一对50多岁的中老年夫妻,在卧室的打造上,他们除了自己使用的卧室外,只需要再给偶尔回家的孩子准备一个卧室就够了,所以原先的三室,便可以有一个空间用来满足业主想要一个茶室的愿望。


1、将休闲阳台、客厅、茶室三个空间打通。原阳台很长,连通客厅和茶室,设计师把这整面墙几乎全部打掉(保留中间的梁柱),把阳台纳入了茶室和客厅,同时把客厅与茶室间的墙以中式栅栏替换,从而实现了公共休闲空间的大格局,非常大气。


2、两个卧室的飘窗都打掉,增设大衣柜。原来的两个卧室都有飘窗,对于老两口来说并不实用,不如打掉,增加了房间使用面积,还可以摆下大衣柜。


3、原来的客卫门正对餐厅,中间设置一面柜体,一举两得。在次卧门外,设计师延伸出一面柜体,既挡住了卫生间门,还让餐厅区域有了餐边柜,增加了收纳空间。



图片


图片

手机版

小程序

公众号