欢迎来到济南装一网!| 登录免费注册 触屏版
您的位置:装一网>济南站>济南生活家>促销活动>90㎡现代简约,阳台卧室变身记

0531-86095002 生活家家居

地址:山东省 济南市 历下区 泉城路322号惠尔商厦5层

在线报价在线预约

  • 一居室
  • 二居室
  • 三居室
  • 四居室
  • 复式
  • 别墅
  • 其他

联系我们

济南生活家装饰工程有限公司

地  址:山东省 济南市 历下区 泉城路322号惠尔商厦5层

电  话:0531-86095002

联系人:生活家家居

促销活动

90㎡现代简约,阳台卧室变身记

内容提示:家是你的家,生活是你的生活,一个房子应该怎么用,决定权在你。每个房间的功能并非不可改变,与其固化地让阳台是阳台,让卧室是卧室,不如先将你对生活的想象展开,然后把每个细节铺在家中,也许原来的卧室拆了墙后正是你想象中餐厅的样子,而原来的阳台,其实更适合做一个新的厨房。



图片

曾看过一个没有厨房和客卧的家。


男主人从不做饭,便将厨房与客厅间的墙打通,获得一个宽敞的客厅;他不爱在家中留客,便将主客卧间的墙打掉,原本被隔成两段的落地窗一下连通,一面完整的城市风景出现在他面前。


家是你的家,生活是你的生活,一个房子应该怎么用,决定权在你。每个房间的功能并非不可改变,与其固化地让阳台是阳台,让卧室是卧室,不如先将你对生活的想象展开,然后把每个细节铺在家中,也许原来的卧室拆了墙后正是你想象中餐厅的样子,而原来的阳台,其实更适合做一个新的厨房。



图片


  1     基本信息


- 楼盘:昆明·春风十里

- 面积:90

- 户型:2室2厅

- 风格:现代简约



  2     业主需求


这套房子本来是三室户型,但因为常住一对中老年夫妻,所以两间卧室便已够用。两口子喜欢简单大方的的风格,希望准备一间卧室给小孙子。另外,两人对厨房的要求比较高,希望能中西厨兼备。


  3     设计师说


这套户型主功能完善,动线流畅,户型方正,基本没有浪费的空间,但是餐厅和卫生间比较小,且生活阳台外紧临玄关,这部分空间比较尴尬,不太好利用。


  4     改造前VS改造后


图片

△原始户型图 图源©生活家家居


图片

△平面图 图源©生活家家居



图片


  1     客餐厅/吃饭的地方宽敞些才舒服


原户型中并没有专门的餐厅规划,考虑到两老口只需要两个卧室就足够,所以设计师将靠近客厅的卧室改造成了餐厅。


图片

△客餐厅改造前。图源©生活家家居


改造中,设计师将“1”处的墙体敲掉,将这处空间做成开放式,一个大餐桌也能毫无压力地摆下,再增设餐边柜,既可储物也可作展示用。


阳台被打造成为一个多功能区,洗衣、储物、看书休闲都可以在这里实现。同时阳台原本的推拉门“2”被拆掉,与客厅连通起来,增大了客厅的通透性。


图片

△客餐厅改造后图源©生活家家居


图片

△餐厅效果图。图源©生活家家居


图片

△客厅效果图。图源©生活家家居


  2     房/一个厨房不够用,就两个


想要中西厨,是业主明确提出的要求,而原户型的厨房面积明显无法满足他们的需要,于是设计师对原厨房外的房间进行了重新规划。


图片

△厨房改造前。图源©生活家家居


原厨房外的空间其实多少有些尴尬,这部分面积不小,但被生活阳台占去一部分空间后,剩下的部分就很难于充分利用,既不能算玄关,也没法当餐厅。于是在与业主沟通后,最终舍弃掉生活阳台(将生活阳台“1”处的门拆除),打通内外,并把这部分空间整合起来打造成西厨,完美实现业主的需求。   


图片

△厨房改造后 图源©生活家家居


图片

△中厨效果图 图源©生活家家居


图片

△西厨效果图 图源©生活家家居



  3     卫生间/让它原地变大


原先的卫生间被墙体隔出了干湿区,但是“1”和“2”两处墙体的存在让本就不大的卫生间显得更狭窄,于是设计师索性拿掉这两处墙体,同时将整个卫生间向右边的次卧扩大了一点,这样在装上盥洗池和马桶后,还轻松放置下了一个钻石形淋浴间。


图片

△卫生间改造前图源©生活家家居


除了移墙,设计师还将卫生间门向左移,这样挪出了更多的空间给盥洗池,并且也让入户门不再正对卫生间门,一举两得。


图片

△卫生间改造后图源©生活家家居



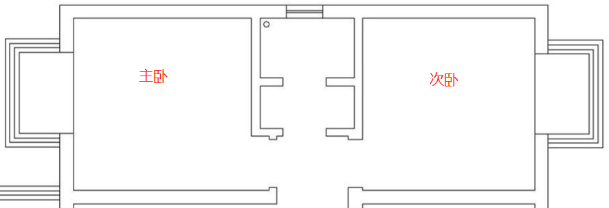
  4     卧室/最强大的收纳之所


主卧面积不算大,只有9平米左右,在放下一张1.8m双人床后便很难再用整面墙定制衣柜,于是设计师和业主大胆决定,主卧不设置衣柜,只是将飘窗打造出一定储物功能,放置一些常穿的当季衣物即可,而主要的收纳需求,则放到了次卧。


图片

△卧室改造前 图源©生活家家居


图片

△卧室改造后 图源©生活家家居


次卧是给小孙子准备的一间多功能房,榻榻米和定制柜的设计意味着这间房间储物功能很强大。因为不是常住,所以小孙子不在的时候,这里承担了房子很大一部分收纳需求。


图片

△主卧效果图 图源©生活家家居


图片

△次卧效果图 图源©生活家家居



图片


这原本是一套三室户型,但因为常住人口是一对中老年夫妇,所以如果按照原户型布局来使用,势必会有较多的闲置空间,所以设计师主要从业主的生活需求出发,对空间进行了重新规划。最终,将原来的三室改成了两室,增设了一个宽敞的餐厅;把原来的生活阳台拓宽改成了西厨,虽然少了一个卧室,但给了业主一份更舒适的生活。


1、将实用性不高的生活阳台拆除,让尴尬空间变身西厨。原厨房不大,无法同时安置中厨和西厨,而厨房外却有一个不小的空间没有被充分利用,如果能舍弃生活阳台,就好办许多。如本案便将生活阳台打掉,把这里打造成为西厨。


2、将次卧空间让渡一些到卫生间。原卫生间的问题比较琐碎,面积偏小,分隔干湿区的墙体也比较占空间,且卫生间门正对入户门。通过拆除卫生间内干湿分离的墙体,同时往次卧外扩,设计师增大了卫生间面积,这使得一个淋浴间能够被轻松安置。门在左移后,内部空间的利用率也得到了提高。


3、卧室不一定非要有衣柜。原主卧面积不大,索性将储物功能都移到了不常使用的次卧,主卧只满足一些当季衣物的存放。因此次卧打造了榻榻米和L形定制柜,储物功能非常强大,足以解决主卧收纳空间不足的问题。


图片


图片

手机版

小程序

公众号