欢迎来到济南装一网!| 登录免费注册 触屏版
您的位置:装一网>济南站>济南生活家>促销活动>220㎡私宅大平层,都市里的极简宁静!

0531-86095002 生活家家居

地址:山东省 济南市 历下区 泉城路322号惠尔商厦5层

在线报价在线预约

  • 一居室
  • 二居室
  • 三居室
  • 四居室
  • 复式
  • 别墅
  • 其他

联系我们

济南生活家装饰工程有限公司

地  址:山东省 济南市 历下区 泉城路322号惠尔商厦5层

电  话:0531-86095002

联系人:生活家家居

促销活动

220㎡私宅大平层,都市里的极简宁静!

内容提示:区别于强调消费的繁冗城市日常,本案利用“自在的精神归属”这一概念,传达出历经繁华,回归到平静自然的可贵,用人与空间的关系丰盈屋主的生活日常,在家的精神容器中寻找恒远的意义与依托……


 归于极简 
图片

区别于强调消费的繁冗城市日常,本案利用“自在的精神归属”这一概念,传达出历经繁华,回归到平静自然的可贵,用人与空间的关系丰盈屋主的生活日常,在家的精神容器中寻找恒远的意义与依托……


 玄关 

图片

图片

色彩赋予空间最妥帖的适度表达,黑白灰的调配组合,于清冷中焕发生机,雅致而盎然。缓缓治愈岁月里的成长桥段。


 客厅 

图片

图片

特色的斜面吊顶是传统文化在现代语境下的最好阐述,巧妙模仿了古建筑的斜顶。公共区地面用微水泥覆盖,无缝一体的质感让空间更加纯净、整体。


图片

空间的储物做到了大块面的隐形,利落平整的简约气质,减少了视线的干扰,打造出更为纯净的“回归”型场域。


图片

图片

图片

设计与选材秉承了极简的原则,进一步强调理性而宁静的室内氛围,空间内利用软性的布艺面料柔和提升心灵感受,营造出材质与情绪的记忆。


 书房 

图片

图片

图片

图片

同一空间的不同功能交织呈现,为客厅空间创造出更多的对话场景,陪伴互动式的居家生活也体现着人与人的相互关照和情感联结。


 餐厨 

图片

图片

组合式岛台采用烟灰色与黑色,与微水泥地面和橱柜颜色相互呼应,木色餐椅给予空间张力与温度,化繁为简的设计不仅不会分散使用者的注意力,反而会赋予居者在空间中做任何事情的自由。


图片

图片

图片

墙面独特的肌理和质感,充满质朴的能量。飨宴时刻的美食于此更加盛放出原汁原味的美妙。


图片


 过道 
图片

光影从不同空间交错于此,在细腻与粗糙的材料混搭间,营造出一种诗意般的宁静……


 主卧 

图片

图片

图片

拆除隔墙后,空间延续了更好的有序流动性,不同的功能空间之间视觉和行为得以相互渗透。素色木地板很好地融入整个空间。


图片


 衣帽间 

图片

图片

独立式的大衣帽间,解决了大部分衣物和物品收纳问题。同时预留了化妆台位置供女主人平日使用。


 主卫 

图片

图片
整体材质与外部保持一致,增加水磨石划定淋浴区,百叶帘让光线有了律动,入墙式龙头也更显简洁。

图片

图片

沐浴时分,卸下紧绷的神经,感受被生活温柔相待。


 次卧 

图片

图片

空间色调温和素雅,恰到好处的金属点缀出了一丝情致与精巧。折叠门打破了与户外露台的隔阂,空间之间得以有序且有趣的生长。


图片

人在空间中的情感交流与活动状态,是丰富空间画面的重要介质,也是赋予空间情感与精神的必要途径,剥离矫饰,退让出生活的本真。


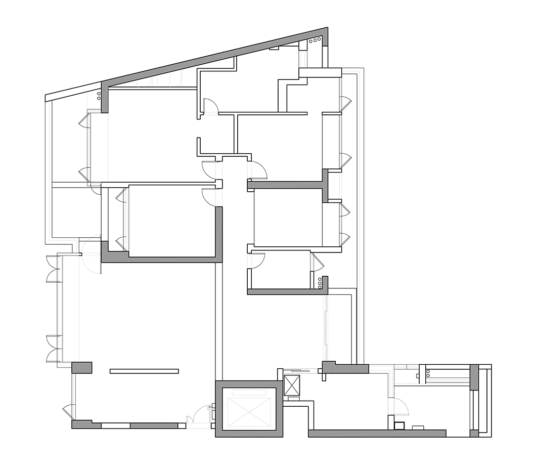
 平面图 


图片原始平面图
图片设计平面图

房屋位置:深圳·兰溪谷

面积户型:220㎡(3室)

常住成员:三口之家

主要材质:微水泥、木饰面、水磨石

手机版

小程序

公众号