
004期
绿色是生命的象征,当它与金属般冷艳的黑白灰相遇时,就像石头上长出的一抹绿,演奏出生命的赞歌。设计师林存宁以太空银打造空间主旋律,搭配格栅、大理石丰富的细节质感,点缀自然绿、爱马仕橙,让整体氛围在克制之内摇曳生姿。
-楼盘:福州·金辉淮安十六山房
-面积:185m²
-户型:4室2厅5卫
-风格:现代简约
-设计师:林存宁
-装修预算:50W(硬装)
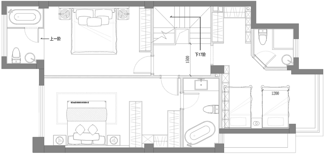
△负一楼平面图
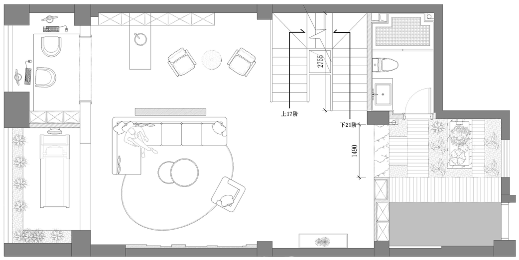
△一楼平面图
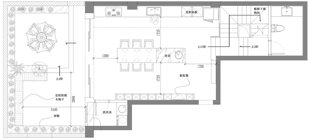
△二楼平面图
此案原始户型为三层,整体方正,采光良好,十分通透,每个卧室都配备独立卫生间,舒适性极佳。业主是一个五口之家,父母也在此居住,在设计上希望以简约为主,但要注重品质的表达,让家充满生机,同时要满足老人的居住需求。
设计思路:
1.玄关:在净白的空间下,地面与客餐厅区域有着明显的差别,也提供了一个灵活的动静分离的区域分块。
2.客厅:电视背景墙采用灰色木作条形饰板,皮质的沙发平添了高级感和舒适感,大面积的墨绿色漆使整体空间不会显得沉闷,看起来充满生机。
4.餐厅:用落地窗连通户外花园,增加采光,采用灰色调以及金属元素的点缀,营造出沉稳却不失格调的氛围。
3.老人房:以灰色为主,营造安静平淡的氛围,采用双床结构,满足老人休息需求。
首先是一楼的入户玄关,该空间比较充足,设计师考虑到一楼主要为公共区域,如何在动中取静,让客厅空间也可以变得舒适,于是将玄关打造成了入户花园。
利用木材、绿植、石材营造了一个无限恬静之感的艺术化空间,伴随着潺潺水流,豁然让空间呈现出一种温柔的力量感。同时,在通往客厅的转角处采用了色彩不同的护墙板,起到过渡两个空间的作用。
负一层的入户则主要以储物为主,所以入户处设置了换鞋凳和收纳柜,用于放置鞋子和外出衣物。
客厅电视背景墙采用灰色木作条形饰面板造型设计,皮质的沙发平添了高级感和舒适感。
沙发背景墙用大面积的墨绿色漆使整体空间不会显得沉闷,茶几的雕塑摆件和绿植的点缀是一丝俏皮的融入。
在空间布局上,为了增加客厅的采光,设计师将书房设计成了开放式,将自然光引入客厅,同时客厅的阳台作为健身区使用。如此一来,客厅便形成了休闲、健身、工作为一体的空间,实用性大大增加。
沙发置于客厅中间后,背部的空间故意留白,只在楼梯一侧放置了一个岛台,可以泡茶泡咖啡。从动线上来说,客厅、书房、健身区的动线互不干扰,让生活变得顺畅。
为了满足一家人的用餐需求,餐厅设置在了负一层,并采用了开放式设计。得益于空间优势,选择了一字型厨房,利用墙面做延展,中西厨一应俱全。岛台和餐桌相邻,餐桌和岛台的角色可以随时互换,满足不同用餐需求。
餐厅与室外花园相邻,自成一景,同时将光引入室内。绿色储物墙兼具美学效果,加强空间的纵深感。
软装方面,选择了长方形实木桌,简约大气,温润厚实的材质很好地与空间融为一体。吊灯选择了点线结构的设计,在冷艳的主色调里显得轻松活跃。
餐厅还配备了卫生间 ,方便家人们回家后使用,色调延续了餐厅的绿色,丰富的绿植让空间更加清晰自然,与餐厅共处一室也不显突兀。
花园作为连接餐厅的一部分,在功能上做了延续,设置了吧台和餐桌,天气好的时候,一家人也可以在室外用餐。地面做了抬高设计,清晰划分了花园功能区,四周用绿植包围,使用起来更加自然舒适。
楼梯采用白色大理石加无边框玻璃的组合,从视觉上显得干净简洁。台阶做了二次弯折处理,使得楼梯下方留出了空间,可以作为负一楼的储藏室使用。
同时,二楼台阶下方做了玻璃镂空设计,让客厅的采光也能引入到楼梯间,增加白天楼梯的采光。
二楼出口处设置了玄关柜,起到空间过度的作用。
二楼设置了三间卧室,分别是主卧、小孩房、老人房,延续简洁时尚格调。
主卧采用摩卡木饰面作为主色调,黄铜金属布线,为木饰面加入新意,打造生活舒适性与艺术高级感。
主卧与主卫之间用储物柜隔出了一个开放式衣帽间,保证隐私的同时,也满足了功能需求,同时让空间不显沉闷。
主卫采用了白色纹理大理石铺设,简洁明了,易清洁。
小孩房格彰显年轻时尚,注入月球漫步的灵感,以白灰为基调,营造出纯净自然的空间氛围。
墙面拉丝效果的饰板,增加了空间的立体层次,简洁美观,搭配悬浮式桌头柜,营造了一种未来感。
小孩房卫生间采用了开放设计,用玻璃门进行隔断,符合当下年轻人的审美需求。整体延续了简洁风格,墙排马桶与龙头,都体现了时尚感。
老人房以灰白色调为主,朴素沉稳,适合老人使用,空间以功能性为主,双床的设计也满足了老人的居住需求。
吧台和沙发椅,让老人在休息时也能享受一份自然风光。同时老人房配备了独立的卫生间和衣帽间,让生活更加便捷。
本案对于石材的运用比例恰当,在大量木饰面、烤漆面的基调里,让效果有更独特的观感,不显沉闷俗套。在空间运用上,充分利用入户的空间,改造出了一处艺术化空间,为生活制造惊喜感,同时合理划分客厅空间,让健身、学习、休息共处一室,却又不互相干扰。功能性增强。
整套案例,设计师都以简洁大气作为出发点,在实用的基础上,增添了时尚的生活细节,让大户型也能充满小资情调,让空间更显乐趣。
设计黄金时代
IN 2021
随着人们生活水平的提高,室内设计的挑战变得更加复杂。过去,设计一直被认为是关于一支笔、一张纸的东西,但是今天,室内设计不再仅仅是平面图,这个行业更多的是需要解决问题、提出问题和产生共鸣。
显然,中国设计行业正在成长,甚至被认为已经走过了一段狂飙突进的「黄金十年」。生活家家居作为「美学整装」的倡导者,用包容万物的美学定律,构建核心设计生态,通过打造美学实景案例,让图纸的价值不止于视界。