当生活不再是简单地栖居一隅,我们对家有了更多关于品质的期待。我们要风格,也要舒适,不流俗,还要有质感。
现代轻奢风的浪漫,成为很多人的第一选择,这套案例就是典型。它用251㎡的精致设计,交出了品质生活的优秀答卷。
-城市:大连
-面积:251m²
-户型:3室2厅2卫
-风格:现代轻奢
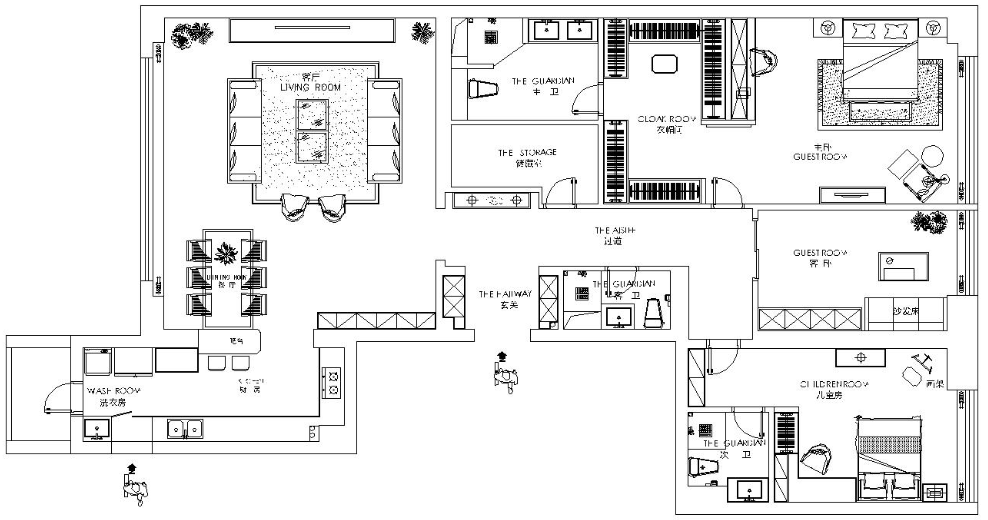
△ 原始户型图
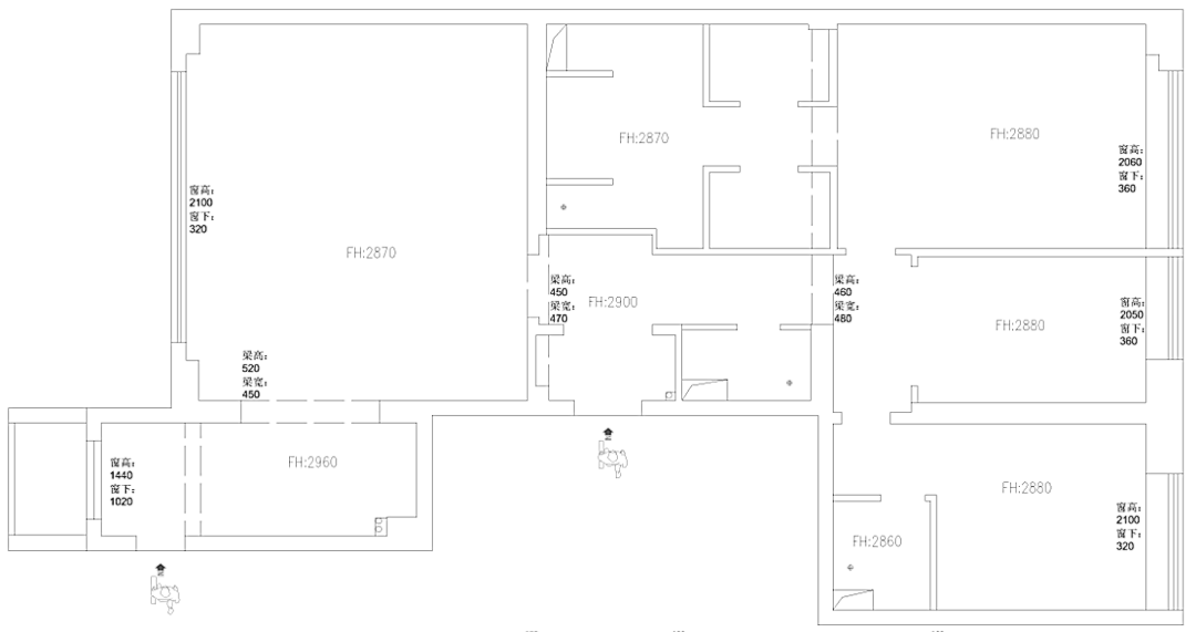
△ 方案布置图
大面积的空间,有时很容易诱人堆叠——什么想要的东西都想装进来,到最后却反而过于繁杂,顾此失彼。
在这套案例中,设计师注意做好减法,同时也通过多材质、元素的精挑细选,做出和谐的搭配,让大空间保持它原有的通透,又能显出轻奢风的质感,充分满足一家人的居住需求。
设计重点:
1. 开放式厨房,贯通生活阳台,打造实用岛台,与客餐厅和谐一体。
2. 主卧设计衣帽间,收纳功能强大,带有实用细节设计。
3. 全屋材质、色彩搭配统一,小面积亮色点缀,精致而不凌乱。
进门两侧都做了通顶的柜体,能够充分收纳鞋子、衣物等物品。
等到正式入住后,这一处挖空的区域可以放下进出门常用的小物,还可以作为扶手使用,内部自带感应灯光,方便实用。
整个柜体没有多余的装饰,没有把手,简约去装饰,更加凸显进门正对墙面上的装饰画。
超大平层户型,客厅尤为大气。
在这样的大空间里,设计师没有采用流行的无主灯设计,而是精挑细选了主灯,主灯由三个简约的圆环相扣而成,金色的金属边与吊顶的整圈金色呼应,点题轻奢。圆形的弧线与矩形的平直线条搭配,整体简洁,又不失华贵。

电视墙一侧,看似简约,实则运用了三种不同的材质搭配一体,白色理石简约优雅,居于C位,两侧配合少量高反射度的烤漆玻璃,以及胡桃木墙板,都是质感的代名词,再加上两盏精致的壁灯,整个空间更显贵气。
沙发、茶几的挑选,也匹配了客厅的面积和风格调性。两组灰加杏仁白的沙发相对摆放,搭配两张橙色单椅,与边几、圆形茶几合围出宽敞大气的客厅空间,金属制的家具脚也和顶面,以及墙面的装饰和谐一体。
橙色沙发的丝绒材质增加了柔软的感觉,跳色也让空间亮了起来。
边几桌面都是和电视墙搭配的理石,连纹路都是成套的,更从细节处强调了整体感。
另一侧墙面,则又换了一种材质的硬包墙板,相对于电视墙略带冷硬的质感,这一侧和窗户相对,色彩偏灰调,搭配金色金属圆片制作的装饰,低调中带点轻奢感,没有过度装饰,和电视墙主次分明。
电视墙正对的一面墙,做了一面的柜体,胡桃木的材质和玄关柜、电视墙遥遥呼应。
柜体为开放式,主要用于摆放书籍和各种藏品,在筒灯的照耀下熠熠生辉。
客厅的地砖色彩和沙发、窗帘相配,大地色系不喧宾夺主,很好地烘托其他金属材质、色彩。
餐厅位于客厅后方,餐桌餐椅的设计和客厅沙发、边几配套,形成一体感。一旁一个岛台,既是隔断厨房和客餐厅,又以理石材质和客厅相配,形成整体感。
岛台做了收纳设计,又留足了活动空间,配上椅子,在这里坐下来喝喝红酒、咖啡,都是享受。旁边预留了电源插座,可以在这里充电,也可以摆放小电器,制作简餐。
厨房做成了开放式,和生活阳台贯通,L型的设计让动线一气呵成,烤漆面板的材质,加上岩板,也更有质感。
进入卧室,首先感受到的是和客餐厅相似又不同的微妙。整体墙纸的选择,和走廊、书房等空间一体,但地板和床头的材质又大为不同。
木地板柔化了空间的硬度,卧室空间更多地采用软包材质,柔软舒适的氛围自然而生,同时,金色装饰条、壁灯、主灯又都保持了轻奢感,和全屋风格适配。
次卧做了榻榻米的设计,加上一侧的柜子,轻松满足了收纳功能。
床的右侧做了女主人的梳妆台,简洁而实用,桌底预留了插孔,方便卷发棒等小物件的使用。
一墙之隔,进入即是衣帽间。衣帽间的收纳能力非常强大,除了通顶的柜体,还根据生活需要设计了放包区、放鞋区,穿衣镜旁的挂钩可以挂上次日要更换的衣物,下方设置了座位,需要时可以坐下来满满更换衣物。
儿童房采用了业主女儿喜爱的粉色,为调和粉嫩的明丽,又加上了灰色,两种颜色的经典搭配,让儿童房甜而不腻。
设计师设计了一体式的书桌、衣柜,方便孩子在这里学习。柜子有充足的收纳空间,透明的柜门还可以展示孩子的玩具收藏。
在儿童房的进门处,设计师也做了单独的更衣区,孩子可以在这里收纳当日要更换的衣物。
严格说来,比起一种风格,轻奢似乎更像是一种追求品质的生活态度。好看的现代轻奢,离不开对材质、装饰元素等整体的把控,以及细节的精益求精,对于大户型来说,如何在多种材质、元素的搭配下还能显得简洁大方,需要反复推敲,这套案例就是一份高分答案。
设计黄金时代
IN 2021
随着人们生活水平的提高,室内设计的挑战变得更加复杂。过去,设计一直被认为是关于一支笔、一张纸的东西,但是今天,室内设计不再仅仅是平面图,这个行业更多的是需要解决问题、提出问题和产生共鸣。
显然,中国设计行业正在成长,甚至被认为已经走过了一段狂飙突进的「黄金十年」。生活家家居作为「美学整装」的倡导者,用包容万物的美学定律,构建核心设计生态,通过打造美学实景案例,让图纸的价值不止于视界。