欢迎来到济南装一网!| 登录免费注册 触屏版
您的位置:装一网>济南站>济南生活家>促销活动>打造107平现代风格的家,给你方圆之间的温柔时光!

0531-86095002 生活家家居

地址:山东省 济南市 历下区 泉城路322号惠尔商厦5层

在线报价在线预约

  • 一居室
  • 二居室
  • 三居室
  • 四居室
  • 复式
  • 别墅
  • 其他

联系我们

济南生活家装饰工程有限公司

地  址:山东省 济南市 历下区 泉城路322号惠尔商厦5层

电  话:0531-86095002

联系人:生活家家居

促销活动

打造107平现代风格的家,给你方圆之间的温柔时光!

内容提示:本案业主是一对新婚夫妇,房子装修好之后要作为婚房居住。喜欢简单大方的现代风格。


01西棠甲第
现代风格

图片



理想之地 奢阔空间FUTURE

装修类型:新房

装修方式:全包

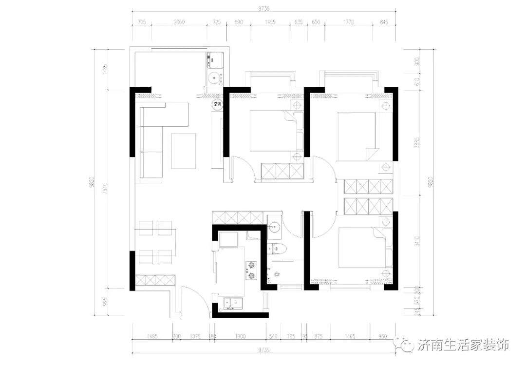
面积:107

户型:三室两厅一卫  

设计师:狄茜茜 

FUTURE

本案业主是一对新婚夫妇,房子装修好之后要作为婚房居住。喜欢简单大方的现代风格。


SHENGHUONANLING

图片

NO.2


客厅:为了提升空间的高级感,在沙发背景墙和电视背景墙上都做了简单的造型,沙发背景墙上的金属条起到了很好地点缀作用,现代中带有轻奢的感觉。影视墙采用了大理石上墙的设计,整体搭配下来,既不过分张扬,又恰到好处的体现出家里的华贵之气。

图片

图片



NO.3

餐厅:考虑到储物功能,在餐厅设计了整面墙的餐边柜,中间隔出了操作台面空间。餐厅墙选用具有现代感的墙饰进行装饰,与客厅的现代风格进行呼应。

图片

图片


NO.4

主卧:女主喜欢亮一点的颜色,最后决定主卧乳胶漆选用淡紫色调,增添了空间内活跃的气氛,内嵌到顶大衣柜,提供了充足的储物空间。

图片


NO.5

次卧:次卧床头背景墙选用了女主喜欢的肉粉色,与米白色床搭配,轻奢感十足,与床品整体搭配下来整个卧室空间清新温柔。

图片


NO.6

厨房:采用的是欧派的整体厨柜,地柜采用阿拉斯加橡木和吊柜采用雪松白,由于厨房空间采光不太好,所以白色方格砖,使整体空间明亮通透。

图片


NO.7

卫生间:卫生间墙砖采用了黑格与白格两种瓷砖,视觉效果对比强烈,整体搭配下来时尚又大气,同时满足了更多的利用空间。

图片

手机版

小程序

公众号