欢迎来到济南装一网!| 登录免费注册 触屏版
您的位置:装一网>济南站>济南生活家>促销活动>100平简约优雅的原木色风格的家,温暖又治愈

0531-86095002 生活家家居

地址:山东省 济南市 历下区 泉城路322号惠尔商厦5层

在线报价在线预约

  • 一居室
  • 二居室
  • 三居室
  • 四居室
  • 复式
  • 别墅
  • 其他

联系我们

济南生活家装饰工程有限公司

地  址:山东省 济南市 历下区 泉城路322号惠尔商厦5层

电  话:0531-86095002

联系人:生活家家居

促销活动

100平简约优雅的原木色风格的家,温暖又治愈

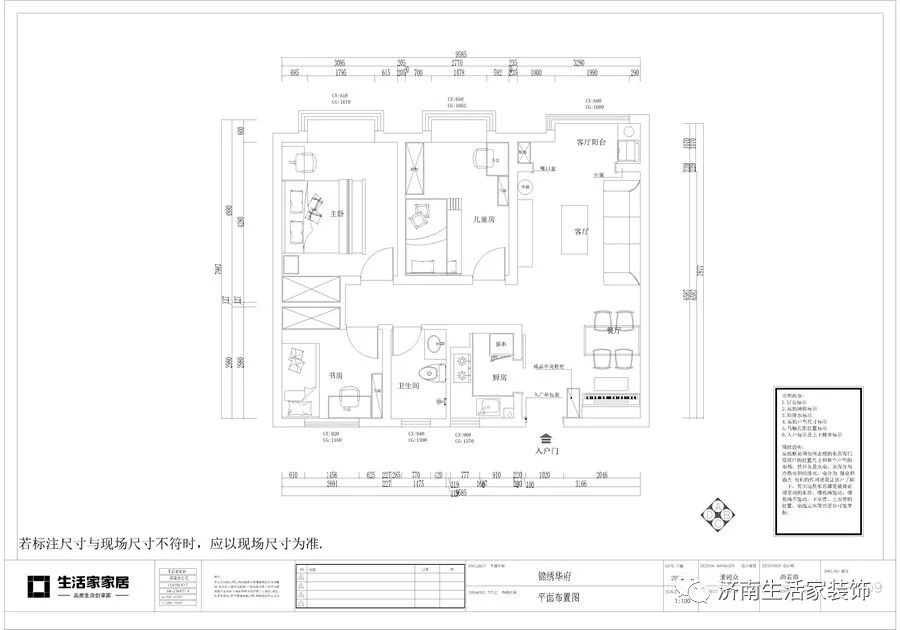
内容提示:本小区公摊大一些,所以整体实用面积不大,后期客户会考虑卖成品书柜,给孩子培养好的习惯,也增加储物功能,整体色调原木 色系,打造温馨、舒适的居住环境。

案例名称:简约

装修类型:新房装修

装修方式:全包

面积:100平

小区名称:锦绣华府

户型:三室两厅一卫  

装修风格:简约


图片

设计说明:

本小区公摊大一些,所以整体实用面积不大,后期客户会考虑卖成品书柜,给孩子培养好的习惯,也增加储物功能,整体色调原木  色系,打造温馨、舒适的居住环境。



设计说明:

本小区公摊大一些,所以整体实用面积不大,后期客户会考虑卖成品书柜,给孩子培养好的习惯,也增加储物功能,整体色调原木  色系,打造温馨、舒适的居住环境。


图片


图片案例赏析图片


客厅:为了弱化梁只有走廊做了吊顶,客餐厅全部压的叠级板带,影视墙没有做造型,背景墙做成书架的形式,增加了储物。



图片

图片



餐厅:餐厅靠近入户门,做了一个小鞋柜区分了一下空间,旁边摆了一架钢琴,也增添了整个空间的艺术氛围。


图片




卧室:卧室的木门和衣柜均选用了拼色的效果,深浅色的搭配不仅视觉冲击力大,而且增加空间的层次感,加上床品软装的搭配营造清新素雅的感觉。


图片




厨房:U字型厨房,增加了厨房的储物空间,厨房墙面白色仿石材的砖,干净大气,地柜、吊柜采用拼色设计,更加有质感。


图片






卫生间卫生间比较暗,没有选用很深的墙砖,用白色的墙砖又单调了些,所以我采用上、下墙砖的设计,这样既不影响你光线,整体的效果又好。


图片




END图片


手机版

小程序

公众号