
—
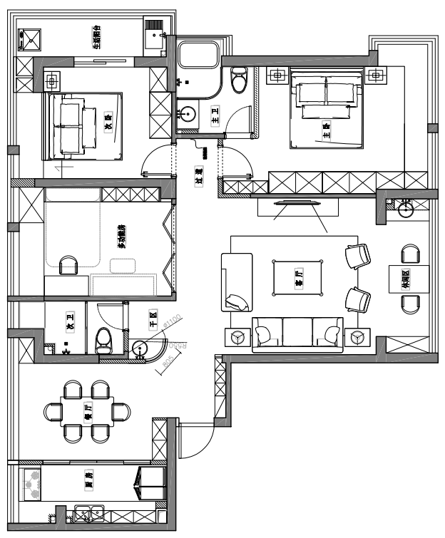
面积 | 110㎡
户型 | 3室2厅2卫
风格 | 现代
		
	
▼改造后
		
	
家装流行风格,往往是一阵一阵地刮,北欧极简,法式复古,又或是现在正流行的奶油风……从众多风格中,找到自己家个性的一面,离不开艺术家式的洞察和勇气。
		
	
今天这套案例让人耳目一新,它的业主有自己独到的审美品位,和设计师大胆、丰富的创想一拍即合,各种色彩、材质以及让人不由得“哇哦”的小细节,都满满置于空间,承载起居住者关于生活的无限想象。
		
	
		
	
		
	
		
	
		
	
无惧混搭
喜欢的一切都可以装进家里
混搭是这个家的特色之一,客厅则将这一点诠释得淋漓尽致。
		
	
		
	
色彩方面,大面积的黑白灰,定下了客厅大气的基调,橙色的巧妙加入,则提亮了空间,增加了年轻跳脱的时尚感。
		
	
材质的叠加使用,也增加了客厅的丰富度。木格栅的沙发背景墙,搭一面橙棕色木质墙体,彼此有高差,层次十足,和阳台的灰白色柜门也形成了更有趣的混搭。
		
	
		
	
沙发墙的“硬”与皮质的沙发的“软”对撞,木格栅的“直线条”也与墙饰黑胶唱片的“圆弧”对撞,而墙饰的亮面材质,又和茶几、电视柜和谐成套。
		
	
		
	
在足够丰富的元素下,电视墙选择了简约的黑色护墙板,实现繁复的平衡,但同时,设计师又在一旁做了石膏线装饰,精致感立刻上线。
		
	
		
	
一旁走廊也做了相应的拱门设计,不仅具有复古感,也和对侧的弧形吊顶灯弧线设计形成对应。
		
	
		
	
旁边休闲空间的门选用白色的折叠门,满满法式风情,也让客厅更加清爽通透。
		
	
次卫在客厅左侧,又与餐厅相邻,因此在满足实用性的同时,对美感也有了更高的要求。
		
	
设计师对次卫采用干湿三分离设计,在干区打造弧形隔断,应用白色长虹玻璃,让这里既有隐蔽感,又不会沉闷。
		
	
		
	
在吧台聊聊天
橙色餐椅让用餐更有滋味
原来弧形的布局里,餐厅空间相对较小,设计师让厨房呈一字型,动线简洁,更易使用,也给餐厅留够了更加充足的空间。
		
	
		
	
于是,餐厅有了落地窗前的吧台。在这里闲坐谈天,喝喝咖啡,品一品酒,再惬意不过。
		
	
		
	
而餐厅本身则更加简洁,墙面的装饰巧妙消融了顶面梁带来的分割感,更显层次。
		
	
简约的黑色餐桌和橙色的餐椅,也和全屋的风格搭配。
		
	
		
	
壁灯温暖,和橙色餐椅一起,使得用餐的氛围更加温馨。
		
	
恣意跳脱
大飘窗实用又美观
黑白灰与橙色的搭配,延续到了卧室。
		
	
		
	
这种强烈的风格,并没有让卧室减少舒适感。木地板凸显休息空间的柔软,床也选用了灰色的布质,带来舒适的睡眠体验。
		
	
		
	
床头采用灰色石膏线+橙色的背景墙,与同为灰色+橙色的窗帘形成立体与平面的对照美。
		
	
再加上一些小饰物,整个卧室的设计,便显得更加丰富活泼。
		
	
		
	
除此之外,一旁L形地台的设计,也更增加了空间层次,为业主提供了一处可坐可卧,可以尽情享受窗外阳光的居心之所。
		
	
		
	
		
	
丰富的色彩、元素,需要在合理且具有创见的设计下,才能如此和谐相融在一个家里。
		
	
这套案例通过鲜艳的橘色与黑白进行拼接,色彩虽然浓郁,却一点也不繁杂,帮助功能区划分,时尚之余稍显高级气质。
		
	
除了色彩的大胆运用,空间还选择了镜面、金属、玻璃等材质进行装点,引入了一点自然的光影,让空间更为灵动,不显沉闷。