
—
面积 | 240㎡
户型 | 5室2厅5卫
风格 | 现代简约
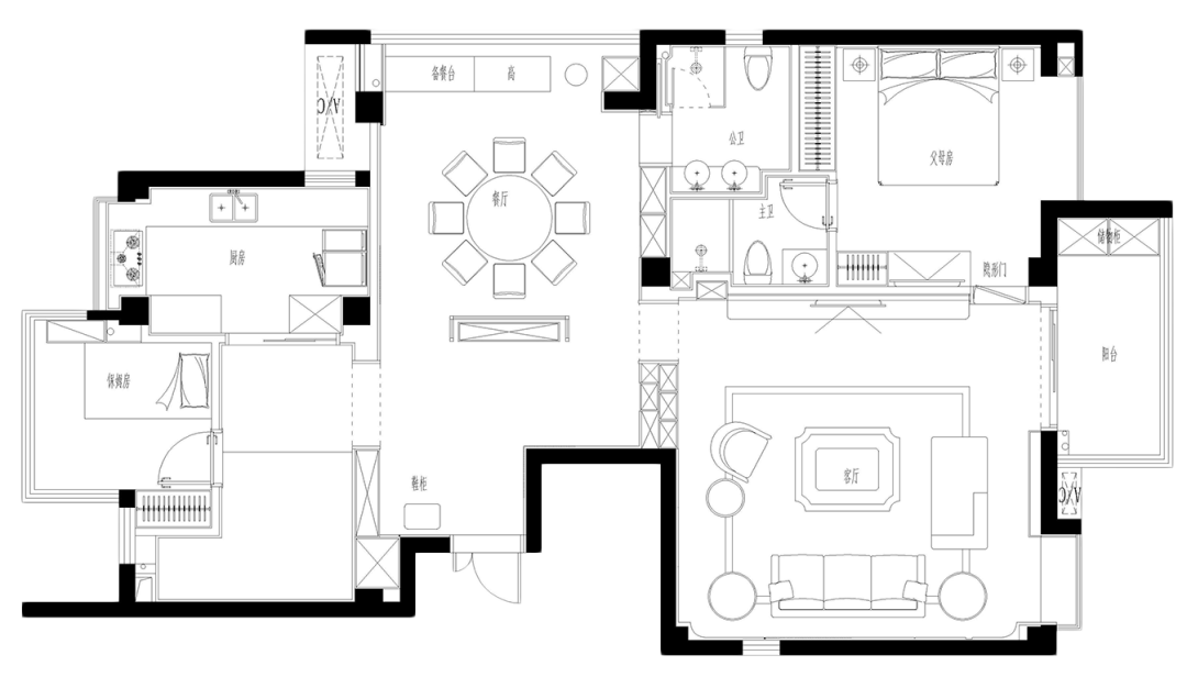
▲改造后平面图1楼
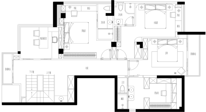
▲改造后平面图2楼
细腻而纯净,每一处看似平凡的点缀,都是点睛之笔。生活的千面,在这个空间里,体现得淋漓尽致。
设计师合理地应用木作、大理石、水磨石材质,奠定了三代之家的基石。以材质的属性划分出空间属性,错落且有序,并在金属、玻璃的点缀下,让时尚感跃然眼前。
每一次回家
都有探店的感觉
设计师的“心机”,在入户处便得以体现,即便是为保护隐私而设置的背景墙,依然透露着独特的味道。木作饰板在柔和灯光的映衬下如一面招牌,搭配通铺的水磨石地面,和背后若隐若现的餐桌,让人误以为进入了私人定制餐厅。
换好鞋,右转通往客厅,所见又是一面水磨石点缀的展示柜,随着视线的延伸,让人对屋内充满了期待。
不负众望的细腻与纯净
这就是家的模样
客厅入口的展示柜与玄关进行了完美地连接,过渡更自然。水磨石的比例在客厅也发生了改变,设计师选择鱼骨拼接原木色地板表达了空间的主色调。
深灰色大理石背景墙比水磨石显得更细腻,视觉上也更稳重。预埋线管的处理,让电视墙变得整洁,满足“纯净”的空间构想。
全屋无主灯设计,搭配浅灰、木色拼接背景墙,显得更清爽。弧形吊顶设计,让空间的层次感增强。U型的沙发布局,让客厅的核心回归到家人陪伴交流上来。
B&B Italia懒人沙发,搭配钓鱼灯,意式气息铺面而来,在这个角落里,把时间留给灵感创作。
烹饪和用餐
都要细心与贴心
餐厅设计在满足时尚的同时,也保留了温馨的氛围。木地板代表的用餐区域,搭配实用的圆桌,让美味变得简单。
墙面水磨石的点缀,与玄关相互呼应,让餐厅在开放的空间里,显得更加和谐。
厨房采用U型布局,以深色调为主,让食物在灯光的照射下更显质感,轨道插座、嵌入式电器,让烹饪变得游刃有余。
功能满分
不同的偏好都能得到释放
通往二楼卧室的楼梯,选择了无框茶色玻璃作为楼梯护栏,简约流畅,并采用了错层的视觉设计,从细节上让楼梯空间得到升华。
主卧色调采用恬淡的粉色,富有生机与活力。全屋无主灯,弧形吊顶搭配灯带,增强空间的层次感。点光源与轨道灯可以满足不同场景的照明需求。
男孩房不再是千篇一律的蓝色,而是采用克制的灰白,以蓝色做点缀。飘窗打造成了一体化的书桌和休闲区,异型的吊顶设计,让整体更简约时尚。
衣柜增加了几何形态的开放式储物格,与床头的储物格相互呼应,展现了小孩的天真与童趣。
女孩房仿佛来到爱丽丝的梦游仙境,设计师采用大胆的异型设计,让空间更加梦幻,与粉色搭配更突显了女孩的俏皮可爱。
在本案中,设计师运用玻璃、金属、几何等酸性设计元素让空间变得更加立体,同时又以木作、水磨石、大理石来凸显生活的细腻与纯净。
三代之家,需要满足不同家庭成员的需求,又要保持空间风格的统一,设计师在材质的搭配上达到视觉平衡,又在细节处画龙点睛,为业主带来了满足生活又高于生活的极致体验。