欢迎来到孝感装一网!| 登录免费注册 触屏版
您的位置:装一网>孝感站>湖北合纵装饰>促销活动>5月7号乾坤豪府夏总雅居开工大吉!!

www.zxdyw.com/shop/59514/

地址:湖北省 孝感市 孝南区 星河天街C1栋2单元1227室

在线报价在线预约

  • 一居室
  • 二居室
  • 三居室
  • 四居室
  • 复式
  • 别墅
  • 其他

联系我们

湖北合纵装饰设计工程有限公司

地  址:湖北省 孝感市 孝南区 星河天街C1栋2单元1227室

电  话:0371-58610011

联系人:毛经理

促销活动

5月7号乾坤豪府夏总雅居开工大吉!!

 今天5月7日,阴历四月十二合纵装饰恭祝乾坤豪府夏总雅居8:58分开工大吉!逢8必发!!


感谢夏总对合纵装饰的信任和认可,相信您明智的选择会让您的新家梦想事半功倍,让我们拟目以待@@......


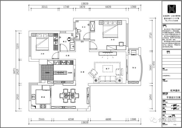
项目地址:乾坤豪府8栋

主案设计:胡枫

装修风格:法式新古典

工地进展:开工大吉!!!

胡枫简介:

毕业于湖北美术学院

擅长风格

现代  欧式  新中式 新古典等。

设计理念

为每一个室内设计项目带来深度和更丰富的视觉效果而,更重要的,是致力在设计上反映屋主个性,为他开创更大的生活空间,贯彻“以人为本”之道。

座右铭

设计源于生活高于生活且改变生活。

经典案例

铜雀台复式、西湖明珠、福星城花园洋房、中建国际花园、滨湖天地、乾坤豪府、星河天街。。。


(小编语录:胡设计师从业7年,一直崇尚原创设计,对设计追求比较高的小主欢迎骚扰哟


开工前的惯例—成品保护

好装修的前提是必须有规范的施工,细节体现成败,施工工艺我们从来都是当成企业的命脉!

文明施工,从我做起!从细节做起!


   (全程手机拍摄,像素有限,模糊之处,敬请谅解@@)


       合纵装饰,在施工地遍布孝感各大新老小区!!各种户型各种风格期待您的参观。

        免费量房,精准预算,创新设计,专业施工......装修就选合纵装饰!!大家的选择才是您认准装修企业的风向标!!

         合纵装饰—您身边的品质家装专家!


合纵装饰,湖北健康装修倡导品牌!正是我们秉承了对客户负责的态度,不计成本,并且投入了大量的人力物力去创新,去改造,才能得到越来越多的业主认可和追随,这正是我们继续前进的最大动力!无以感谢,唯报品质。

越了解装修行业,越信赖合纵装饰!

———————————————  —————


关注我们了解更多:

方式一:扫描上方二维码

方式二:搜索微信公众号合纵装饰


手机版

小程序

公众号