欢迎来到威海装一网!| 登录免费注册 触屏版
您的位置:装一网>威海站>威海业之峰装饰>促销活动>威海业之峰乳山香榭里样板间征集案例

www.zxdyw.com/shop/59749/

地址:山东省 威海市 环翠区 经区蓝星万象城30-36

在线报价在线预约

  • 一居室
  • 二居室
  • 三居室
  • 四居室
  • 复式
  • 别墅
  • 其他

联系我们

威海市业之峰装饰工程有限公司

地  址:山东省 威海市 环翠区 经区蓝星万象城30-36

电  话:0371-58610011

联系人:邹经理

促销活动

威海业之峰乳山香榭里样板间征集案例

内容提示:简欧大气、更贴近于自然,也符合国人审美,因此国内发展较快。从字面意思分析,简欧也就是简化了的欧式装修风格,但原先欧式风格的高雅仍然被保留了下来。随着简约室内设计风格的升级和传统欧式风格的净化,不少人开始推崇和追逐简欧的家居风格。小区名称:香榭里小区户型:三居室面积:130㎡风格:简欧风格设计师:王楚

简欧大气、更贴近于自然,也符合国人审美,因此国内发展较快。从字面意思分析,简欧也就是简化了的欧式装修风格,但原先欧式风格的高雅仍然被保留了下来。随着简约室内设计风格的升级和传统欧式风格的净化,不少人开始推崇和追逐简欧的家居风格。

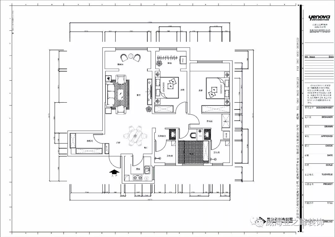
小区名称:香榭里小区

户型:三居室

面积:130㎡

风格:简欧风格

设计师:王楚

户型品鉴


设计效果图


种风格从整体到局部、从空间到室内陈设塑造,精雕细琢,给人一丝不苟的印象。一方面保留了材质、色彩的大致感受,可以领悟到欧洲传统的历史痕迹与深厚的文化底蕴,同时又摒弃了过于复杂的肌理和装饰,简化了线条。

欧式风格强调以华丽的装饰、浓烈的色彩、精美的造型达到雍容华贵的装饰效果。欧式客厅顶部喜用大型灯池,并用华丽的枝形吊灯营造气氛。


简约欧式风格沿袭古典欧式风格的主元素,融入了现代的生活元素。欧式的居室有的不只是豪华大气,更多的是惬意和浪漫。通过完美的典线,精益求精的细节处理,带给家人不尽的舒服触感,实际上和谐是欧式风格的境界。同时,欧式装饰风格最适用于大面积房子,若空间太小,不但无法展现其风格气势。 

本案设计师

【设计师】

  王楚

【设计理念】

用心营造灵性的空间,用最少的语言表达深厚的文化。以人为本,不只是设计,而是对生活的感悟和追求。

【设计案例】

山花泰和府、天泽府、蓝星万象城、宝源珑湾、龙泽府、保利凯旋公馆、半岛印象、红叶谷等。

【擅长风格】

现代简约、简欧、美式、新中式等



21年专注环保装修

关注公众号“威海业之峰装饰”每天分享好案例

THANK U FOR YOUR APPRECIATION


拨打0631-3683799预约设计师免费领取初步设计方案

      


手机版

小程序

公众号