欢迎来到日照装一网!| 登录免费注册 触屏版
您的位置:装一网>日照站>日照远洋装饰>促销活动>收纳设计宝典”(全面解决方案)

www.zxdyw.com/shop/63828/

地址:山东省 日照市 东港区 烟台路与东营路交汇处曲师大图书馆对面远洋装饰

在线报价在线预约

  • 一居室
  • 二居室
  • 三居室
  • 四居室
  • 复式
  • 别墅
  • 其他

联系我们

日照远洋装饰工程有限公司|日照装修

地  址:山东省 日照市 东港区 烟台路与东营路交汇处曲师大图书馆对面远洋装饰

电  话:0371-58610011

联系人:秦经理

促销活动

收纳设计宝典”(全面解决方案)

住宅收纳空间的设计是住宅全家居解决方案的重要部分,体现人性化和精细化设计理念。所谓全面家居解决方案是通过对客户行为模式深入研究,在进行户型设计,建筑设计和室内装修设计同步进行,再进行施工。设计科学的储藏空间符合现代家居生活的人性化发展趋势。


一、玄关柜

玄关指住宅室内与室外之间的一个过渡空间,也就是进入室内换鞋、更衣或从室内去室外的缓冲空间。

 

模拟人回家后的系列行为动作:


模拟人出门时的系列行为动作:


根据生活习性以及对行为模式,将玄关的功能进行了细分:

1.刚性需求--基本功能--必须满足;

2.情感需求--扩展功能。


示例:

1)、魅力玄关柜--尺寸1000×300×2300


玄关柜功能布置图:


2)、才茂街玄关柜--尺寸3850×600×2600


玄关功能布置图:


玄关柜实例图:


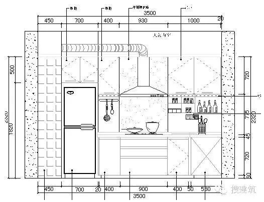
二、橱柜

厨房,是女人的天地,是提供给全家人营养美味的源头,但厨房收纳一直是女人们所头疼的问题,一日三餐免不了锅碗瓢盆的搬搬挪挪,那么我们又将如何收纳?

 

模拟厨房系列行为动作:


橱柜功能设置:


橱柜平面图:


橱柜立面图及功能布置展示:


橱柜示例图:


在厨房空间收纳的问题上,拉篮可以说最好的帮手,它不仅能最大限度的利用空间,同时还能将拐角处的废弃空间充分使用,将此把厨房空间价值进行最大化的价值。搜建筑小编下面为您分享几个橱柜拉篮巧妙设计▼▼

 

1)竖长的窄形拉蓝设计

对于厨房空间之中那么灌状或瓶状的物品,竖长的窄形拉篮设计相信定是您不错的选择,二、三层的抽拉式侧面窄抽屉,将橱柜的狭长的角落空间充分利用起来,用来存放厨房中小件的瓶瓶罐罐、小型器皿等,最最适合不过的了。

 

2)分层分隔拉蓝设计

分层架的拉篮设计,可以说是目前现代厨房空间之中最为常见的一种。当然可以根据厨房厨具的多少来设计两层、三层..或多层深阻尼拉篮,它不仅可以让厨房用品清晰,轻易归类,拿取方便,同时负荷越重越顺滑,轻松调节篮体高度,方便大小不同物品摆放。

 

3)飞叠拉蓝设计

L形拐角常常会出于厨房空间之中,那么如何将其很好的利用呢?也许这个飞碟转角拉篮就可以帮上忙,轻轻一拉柜门,两个如蝴蝶翅膀的拉篮就会飞旋而出,便之幻化为“美丽的储纳空间”。


三、衣柜

衣柜:是存放衣物的柜式与实木家具,从使用上划分衣柜可分为三大类:推拉门衣柜,平开门衣柜和开放式衣柜。

 

衣柜的基本功能:


衣柜的扩展功能:


示例:魅力衣柜--尺寸2200×600×2650

 

平面图:


衣柜参考实例图:

大格局衣柜



四、镜柜洁柜

卫生间收纳空间不足,会使得卫生间看起来乱糟糟的,自然没有美感,因此卫生间的镜子替换为镜柜,可以完全满足你的收纳要求。

 

模拟卫生间系列行为动作:


镜柜洁柜功能:


平面图:


镜柜洁柜功能布置图:


镜柜实例图:


五、储藏柜

每个家庭都有自己的储藏空间,可收纳各种常用或不常用物品,这些物品种类繁多、用途各异,应设置相应的空间,分门别类地储藏。

 

示例:尺寸2700×600×2650

 

平面图:


储藏柜功能布置图:


储藏柜实例图:

本文结合家居设计的实际情况,对家居生活中的收纳系统进行分析,以说明收纳系统在室内设计以及人们日常生活中的重要性。论文从家居生活中常见的收纳问题入手,详尽的分析家居中各主要功能分区、家具的收纳问题,寻求解决方法,在解决家居收纳问题基础上,从设计美学、人机工程学、设计心理学的角度,在综合了经济、社会、环境、人体工学、人的心理、文化层次、审美情趣等多种因素的基础上,探讨收纳系统的人性化设计。

转载请联系小编

手机版

小程序

公众号