欢迎来到洛阳装一网!| 登录免费注册 触屏版
您的位置:装一网>洛阳站>新恒发装修平台>促销活动>恒发装饰首席设计是张怡然带你走进国花宝居107温馨之家

www.zxdyw.com/shop/6405/

地址:河南省 洛阳市 涧西区 王城大道半岛明珠东侧门面房2层

在线报价在线预约

  • 一居室
  • 二居室
  • 三居室
  • 四居室
  • 复式
  • 别墅
  • 其他

联系我们

洛阳恒发建筑装饰工程有限公司

地  址:河南省 洛阳市 涧西区 王城大道半岛明珠东侧门面房2层

电  话:0371-58610011

联系人:史雨辰

促销活动

恒发装饰首席设计是张怡然带你走进国花宝居107温馨之家

2016-04-04 恒发装饰 洛阳恒发装修公司

项目介绍::

项目地址:国花宝居

工程预算:80588

主案设计:首席设计师张怡然

工程时间:85天

设计师介绍:

  • 毕业院校:郑州大学

  • 设计理念:合理划分空间,让设计融入生活,营造自然,品味,格调。

  • 设计经验:5年

  • 成功案例:升龙广场,鼎城,建业高尔夫,

  • 擅长风格:

  • 现代简约,欧式,田园

设计方案:

设计说明:由于室内采光不好,和空间划分不理想不具备就餐位置。本案整体结构改的较大,把客厅和厨房的一面墙改动为吧台及餐厅。室内主要采用暖色调来衬托室内温馨效果。

效果图

主卧室

客厅

厨房及吧台

卫生间


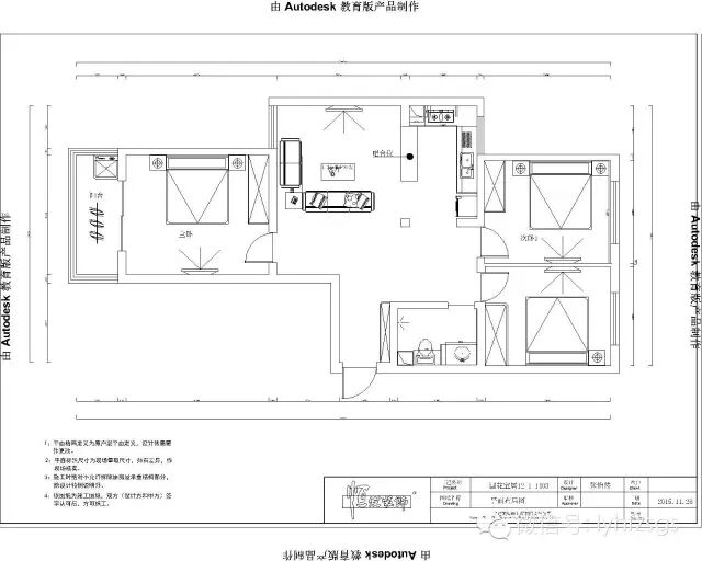
平面

下面我们看看完工图吧


    洛阳市恒发建筑装饰工程有限公司成立于2004年,创办12年以来,我公司始终坚持"报价透明、材料透明、施工透明、服务透明"的管理模式,在业界首创《家装成本白皮书》、《监理报告黄皮书》等,全面规范并透明化家装服务流程,使消费者轻松参与其中、放心消费,从而被众多客户誉为"百姓家装第一品牌、省钱专家"的口号.所获荣誉有洛阳十佳装饰公司、洛阳最具影响力装饰公司等,施工业绩连续多年年在洛阳装饰行业遥遥领先."全方位的商业设计服务体系。

手机版

小程序

公众号