欢迎来到滁州装一网!| 登录免费注册 触屏版
您的位置:装一网>滁州站>滁州久烁装饰>促销活动>【玲珑湾东苑】280平 一层带地下室 现代轻奢

www.zxdyw.com/shop/68394/

地址:安徽省 滁州市 南谯区 丰乐大道长江财富广场A座一楼门面商(华美达酒店隔壁)

在线报价在线预约

  • 一居室
  • 二居室
  • 三居室
  • 四居室
  • 复式
  • 别墅
  • 其他

联系我们

滁州久烁装饰设计工程有限公司

地  址:安徽省 滁州市 南谯区 丰乐大道长江财富广场A座一楼门面商(华美达酒店隔壁)

电  话:0371-58610011

联系人:久烁

促销活动

【玲珑湾东苑】280平 一层带地下室 现代轻奢

内容提示:本案业主是一位成功的企业家,平时比较忙碌,注重休息,同时想要一家人聚齐在一起。因此这一套名为 “ 欢眉 ” 的复式应运而生,所谓:老少同欢眉上笑,家人共聚面容甜。​


本案业主是一位成功的企业家,平时比较忙碌,注重休息,同时想要一家人聚齐在一起。
因此这一套名为 “ 欢眉 ” 的复式应运而生,所谓:老少同欢眉上笑,家人共聚面容甜。


项目户型         | 复式

设计风格         | 现代轻奢


项目面积         | 280 ㎡


设计总监         |   张 浩  


  户型解析 

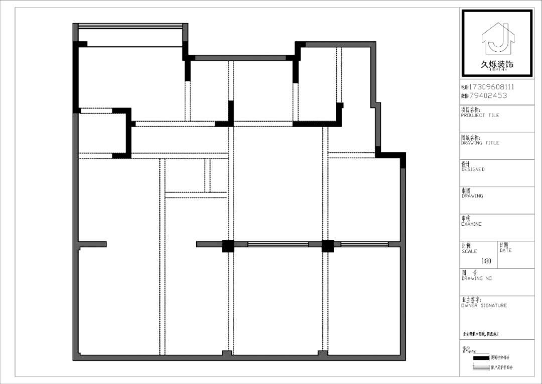
一楼原始结构图

一楼改动位置

一楼平面布置图

左右滑动查看更多


 一楼解析 


房屋优点:


客厅宽广,一楼采光充足,并伴有户外花园,非常惬意。两个向阳卧室保证了正常家庭的日常起居。

双卫生间的配置,也让大多数家庭在上班上学高峰期间,避免了抢卫生间的问题。

房屋缺点:


玄关处,空间狭窄、没有光照,楼梯入口在房屋中间,分割了空间,占据了客厅使用面积,同时也增大了主卧出来时的安全问题。

解决方法:


1、将入户玄关处的卧室打通,以鞋柜代替隔墙,扩大玄关使用面积。并增加玻璃隔断,让光线折射进玄关。

2、入户卧室和楼梯入口对调,将楼梯迁移到玄关背后,在增加美观的同时,还增加了一个榻榻米,以供休闲。
3、原楼梯位置改造成次卧室,与卫生间距离更近,生活更加方便,动静结合更加合理。Nice!!!

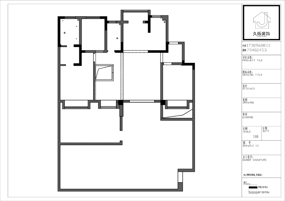
负一楼原始结构图

负一楼设计分布

负一楼平面布置图

左右滑动查看更多

 负一楼解析 


房屋优点:


空间没有隔墙打扰,可以让设计师自由发挥,在保证舒适条件下,最大化居住体验。

设计思路:


负一楼动静区域划分,以书房为中心,辐射出品酒区、棋牌室、影音区、健身房等休闲娱乐区域,同时增添了客房,配有单独衣帽间。

 客 厅 


低调的色彩组合并不会显得昏暗,其中的秘诀就是留白的处理,辅以生命力极强的木元素,让空间充满了积极向上的呼吸感。


玄关处的玻璃隔断增加了玄关的采光度,黑色边框呼应了客厅的造型设计,让楼梯间成为了一个整体。
悬空的电视背景墙让空间活了起来,增加了楼梯与客厅的互动,延伸了客厅的视觉效果。双动线的设计让榻榻米不在死板,增添了家人的互动,让家人间更加亲密。


木饰面延伸至空间顶部,平面处的镂空,又创造着轻灵的气氛,放上书籍,在客厅中各自静候着,让空间的功能性更加多元化。


 厨 房&餐 厅 


半开放式的餐厨设计,让每个热爱生活的人都避免不了和厨房打交道,超强的收纳功能让锅碗瓢盆无影踪,下班后和家人一起修炼厨艺,轻松享受厨房温馨的时光。


 主 卧 室 


撞色拼接的背景墙让空间增添了一丝活泼,而木元素与布艺的融合,却在其中起到了温润的作用。地毯与懒人沙发的组合也让人感觉空间中充满了生气。


 儿 童 房 


温柔的木元素遇到了粉色,柔软之中揉入了一丝俏皮。床头背景配上灯带,俏皮的同时也不乏一丝稳重。


 书 房 


简单的设计,却暗藏对家的期待。

大面积的展示功能除了放置书籍,更可以摆放孩子的奖状、奖杯、证书。灵活的书桌设计也可以根据情况,

让空间成为玩耍的区域。




手机版

小程序

公众号