欢迎来到重庆装一网!| 登录免费注册 触屏版
您的位置:装一网>重庆站>熙和兰廷>促销活动>御景天下复式户型解析

www.zxdyw.com/shop/97774/

地址:重庆市 重庆市 铜梁县 铜梁淮远古韵创味江湖楼上

在线报价在线预约

  • 一居室
  • 二居室
  • 三居室
  • 四居室
  • 复式
  • 别墅
  • 其他

联系我们

重庆熙和兰廷装饰工程有限公司

地  址:重庆市 重庆市 铜梁县 铜梁淮远古韵创味江湖楼上

电  话:0371-58610011

联系人:汤女士

促销活动

御景天下复式户型解析

内容提示:现在越来越多的人选择复式楼,但是往往复式楼的业主觉得想要装修得好是件很麻烦的事情,因为分上下两楼,所以在协调性和一些隐秘性的空间上更加的不好掌握。不用担心,好的设计师自然会给你好方案。
重庆熙和兰廷装饰首席设计师——胡登平
毕业院校:沈阳鲁迅美术学院
从业年限:10年
设计理念:生活是一切琐碎的集合,所有好的设计都是每个人对家感情的表现,设计起源生活、生活创造设计!
下面就由熙和兰廷首席设计师带你解析御景天下3栋的复式设计吧!(二楼原始结构图)

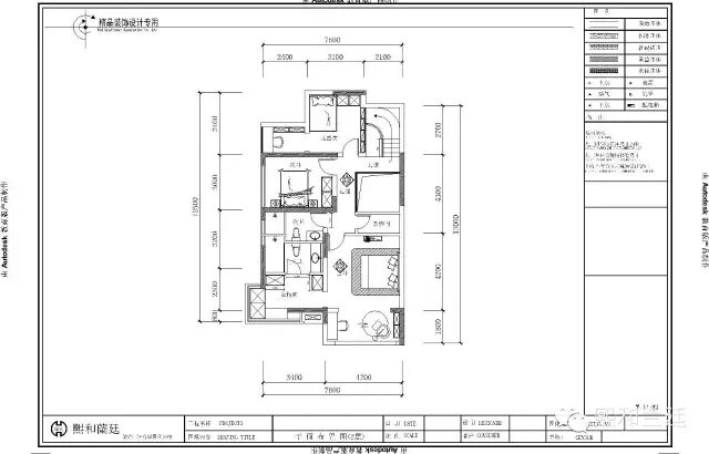
对于复式房的装修来说,因为复式的房子进行了挑高,同时又分成了上下层,有些空间是重叠的部分,因此要充分的考虑到复式房之中对自然光的利用。因此在设计之时,复式房的窗户也要多一些,这样能更加的透光。(一楼原始结构图)

复式楼的墙面要突出设计感来,如果过于简单,会显得墙面太单调,因此对待复式楼,尤其需要有一种设计的美感。除了用各种不同的装饰材料来对墙面进行装饰 外,电视背景墙,也是我们打造的重点,可供发挥的余地也很多,需要我们来浓墨重彩的书写。(二楼平面改造图)

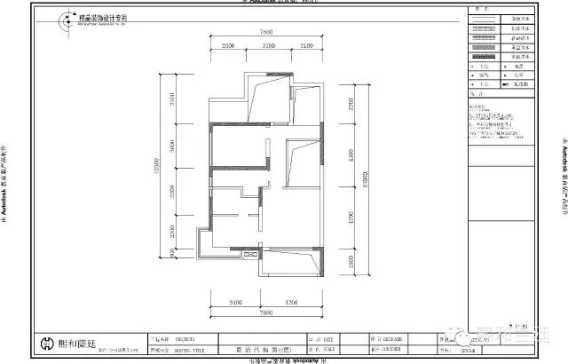
(一楼平面改造图)

而此户型在结构改建上考虑把楼梯完全开敞出来,改造后的弧形楼梯让房间增添了几分柔和的气息 开放式厨房把公共区域更好的融合在一起;材质上大量运用了木料、布艺等元素,让人与自然得到完美的结合!(客厅效果图)

此户型在空间的色彩搭配上,选择了颜色较为简单一些。选择的最佳方法,就是选择一个大的基本色,再选择与他更适合搭配,最好是更接近的颜色来进行搭配,一般情况下,我们的装修颜色不要超过三种,这样才能显得更加的协调,同时为了让复式房的空间更加的充实,光照更充足,灯光的配置也至关重要,不能太亮也不能显得过暗,一般情况下,能够满足我们的生活之中的需要就可以了,同时还可以多用一些灯光来进行照明,也能够用灯光来充实整个空间。(卧室效果图)

美由心造 我自不凡——熙和兰廷装饰
爱家热线:023-45877888
地址:铜梁区淮远河商业特色街1号2、3、4楼(创味江湖楼上)


手机版

小程序

公众号