欢迎来到黄冈装一网!| 登录免费注册 触屏版
您的位置:装一网>黄冈站>北京家年华装饰>促销活动>黄冈家年华装饰恭祝余先生福宅开工大吉!!!

www.zxdyw.com/shop/98107/

地址:湖北省 黄冈市 黄州区 黄州大道87号,市委党校斜对面

在线报价在线预约

  • 一居室
  • 二居室
  • 三居室
  • 四居室
  • 复式
  • 别墅
  • 其他

联系我们

北京家年华装饰公司黄冈分公司

地  址:湖北省 黄冈市 黄州区 黄州大道87号,市委党校斜对面

电  话:0371-58610011

联系人:吴静

促销活动

黄冈家年华装饰恭祝余先生福宅开工大吉!!!

主任设计师:陈磊

职位:主任设计师

设计理念: 设计是生活的细节美

擅长风格:时尚简约现代风、欧式风格、美式风格、中式风格···


恭祝【中州慧谷】余先生开工大吉!

感谢中州慧谷业主对我们家年华装饰的信任,我们会用最好的工艺让业主满意入住新家,预祝业主先生早日乔迁新居!


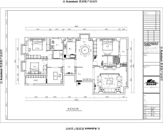
让我们先来看看平面图,效果图吧!

开工时间:10月27日

工地点:中州慧谷

    业主


手机版

小程序

公众号