七月,我们很“红”
小编真心想说:澳华的七月,真的红得停不下来呀!7月31号8点58整,鄂州澳华装饰又迎来了天龙国际周先生新居开工!
业主马女士喜敲开工第一锤!喜笑颜开,预祝万事如意!
第二项,抓“金”手开始了,抓的多多益善呀!
美丽的小天使积极参与,乐在其中!
鄂州澳华装饰公司工作人员与业主合影,我们是相亲相爱一家人!
业主在外地工作,装修的事全权委托给“鄂州澳华装饰”,这是对我们的信任,更是我们的责任,我们宣誓:要通过我们的努力让客户充分感受到“澳华装饰,全程无忧”!
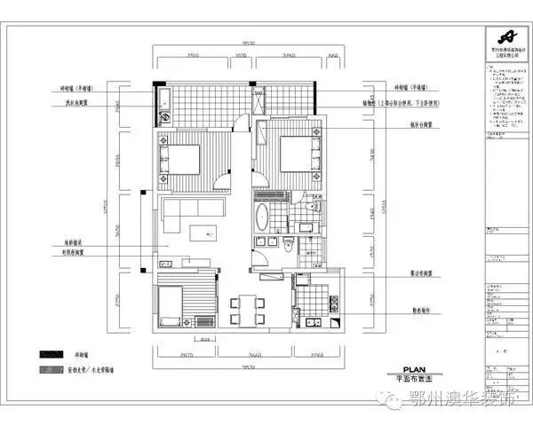
【天龙国际设计作品】
房屋面积:123平米
装修风格:北欧混搭
半包价格:59500元
设计师:胡工
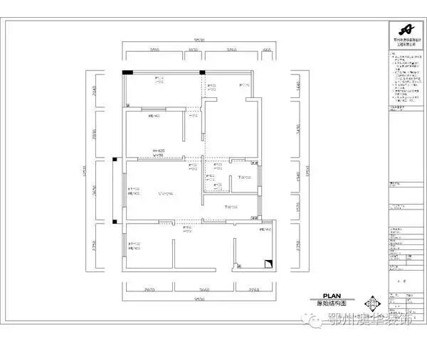
【原始结构图】
是你喜欢的风格吗?我挺喜欢,如果钟意就请联系“鄂州澳华装饰”,鄂州澳华装饰恭候你的光临!
